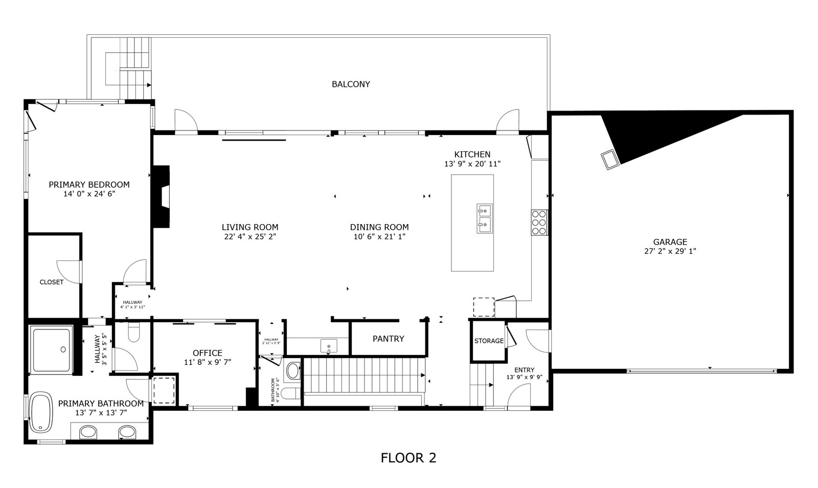
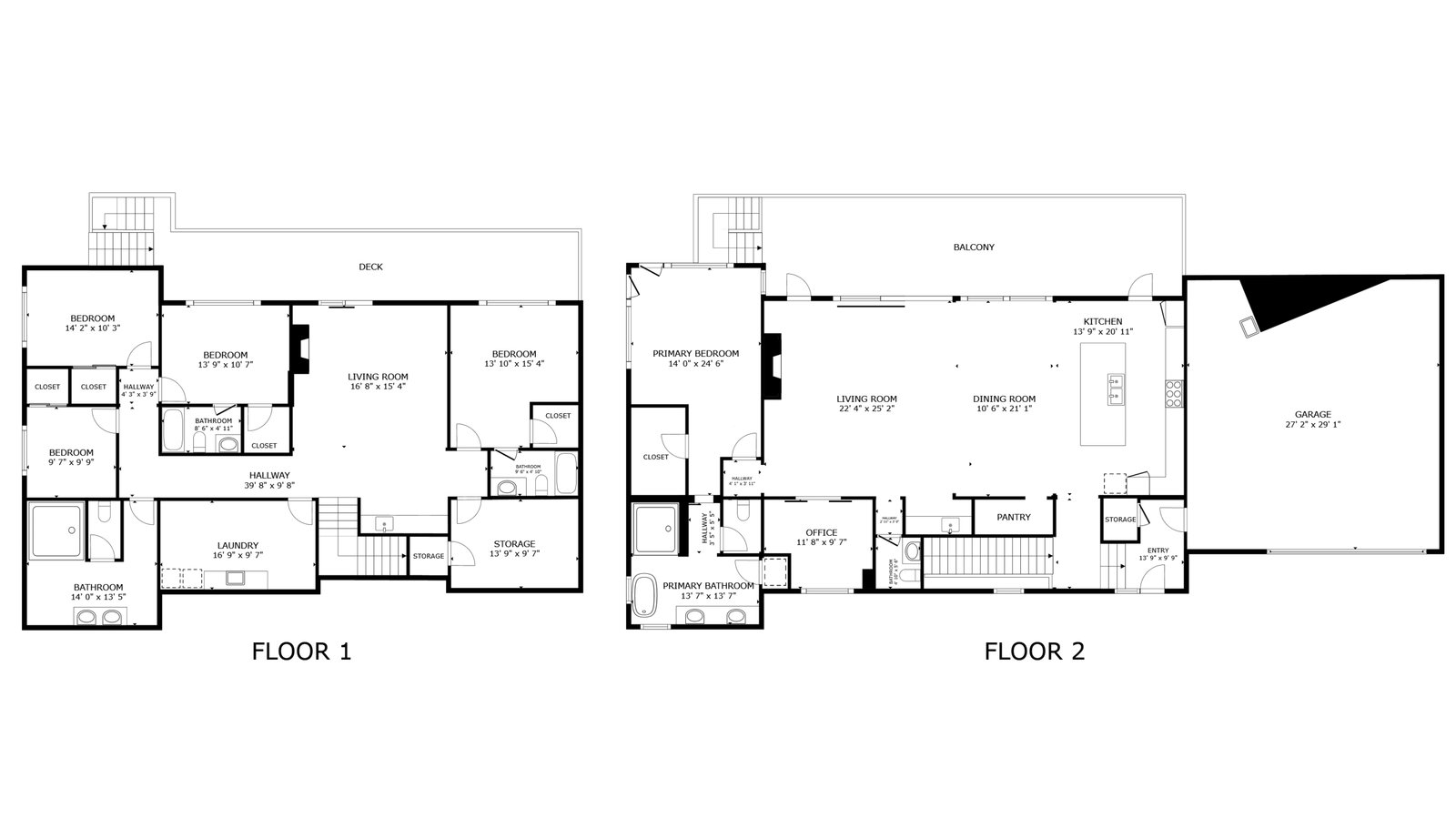
About the Property
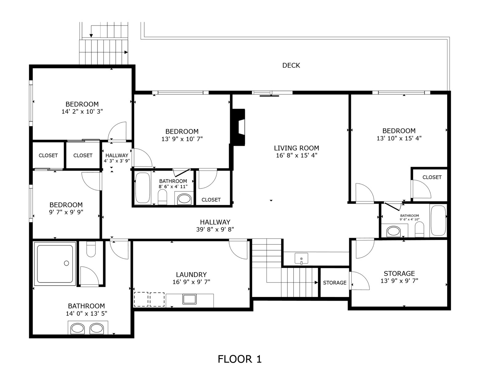
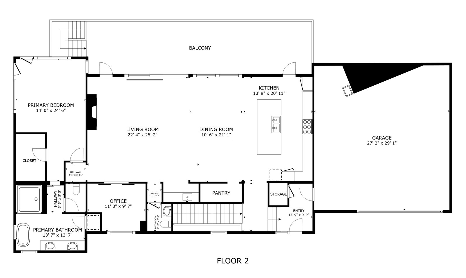
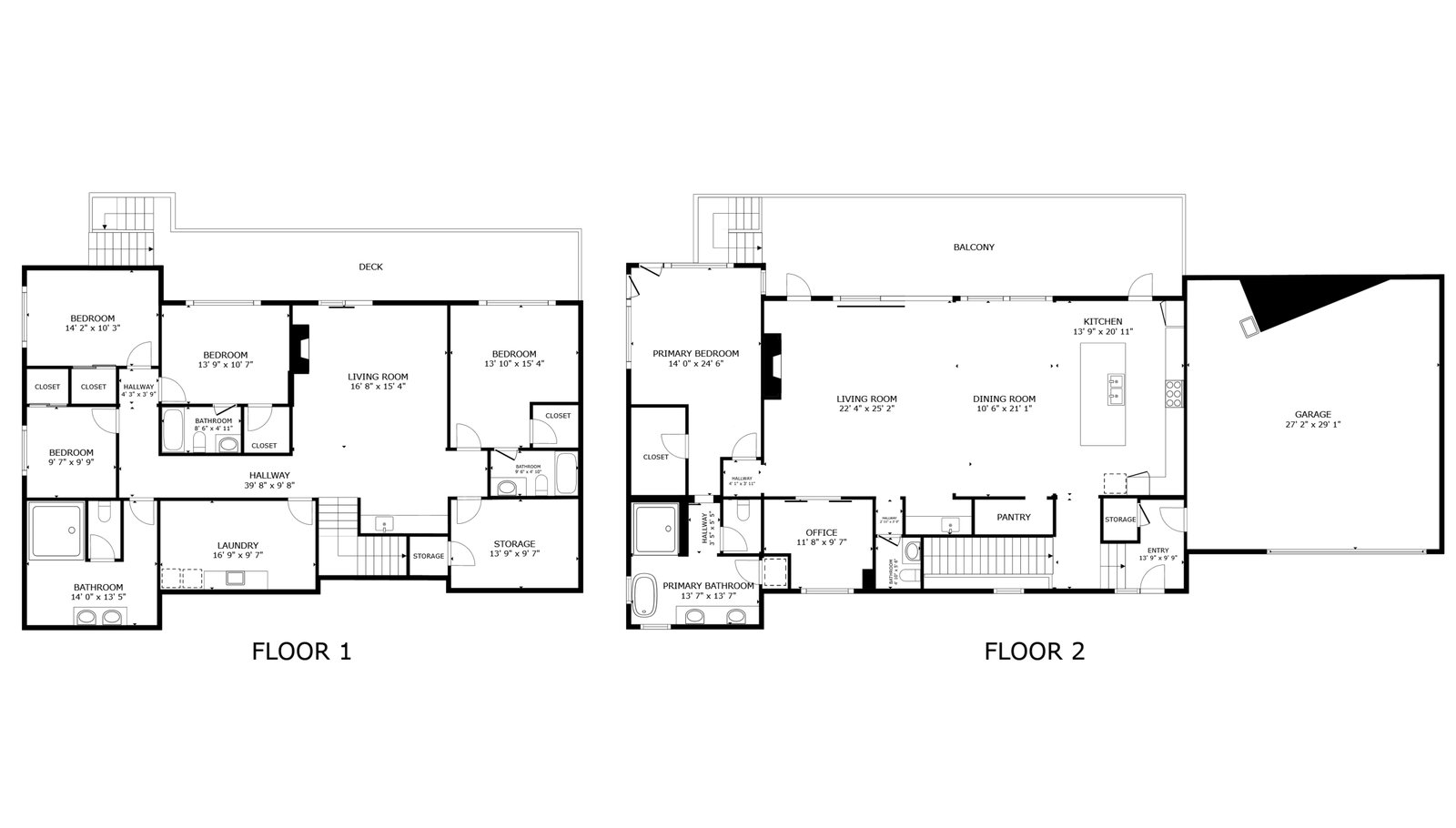
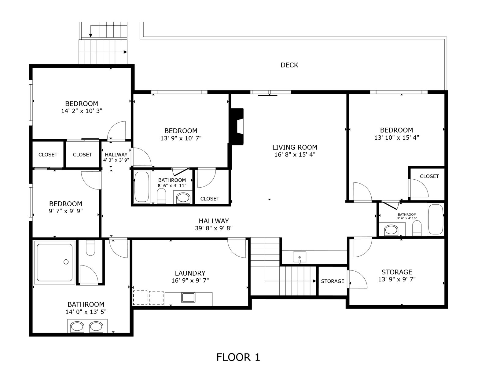
New construction perched atop Whiskey Hill in the coveted EagleVail community, 824 Eagle Drive Circle West is a stunning testament to modern mountain living, where efficiency meets unrivaled craftsmanship. A heated driveway ensures year-round access, effortlessly melting away winter's challenges. Inside, the grand room impresses with 18' ceilings and standing seam metal-wrapped beams, creating a space that's both dramatic and inviting. An Expansive wall of sliding doors open to unobstructed northern mountain views. The chef's kitchen, designed for both intimate gatherings and grand entertaining, boasts stainless steel Thermador appliances, soft-close cabinets, porcelain countertops, and a custom porcelain range hood. Flowing naturally from the kitchen, the grand room extends through the dining area into the sitting area, creating a seamless open-concept layout ideal for relaxed evenings and lively celebrations. At its heart, a floor-to-ceiling custom porcelain-tiled fireplace serves as a stunning focal point. The primary suite is a private retreat, featuring spa-like en-suite bath with a freestanding soaking tub, radiant heated floors, and an oversized shower. A custom walk-in closet and a second stacked washer and dryer enhance convenience. The lower level extends the home's livability with a second living area, wet bar, oversized laundry room, and four bedrooms, two with en-suite baths. The deck is also hottub ready, perfect for apres. A highlight of this home is the 830-square-foot heated garage, accommodating four cars in tandem, with an EV charger and dog-washing station. Designed for sustainability, the roof is also solar-ready. Located minutes from Vail and Beaver Creek Resorts, enjoy year round EagleVail amenities: miles of trails, golf, pickleball, parks, gardens, and more. For those seeking a mountain modern sanctuary that balances sophistication with sustainability, this residence is an unparalleled offering in the heart of the Rockie