About the Property
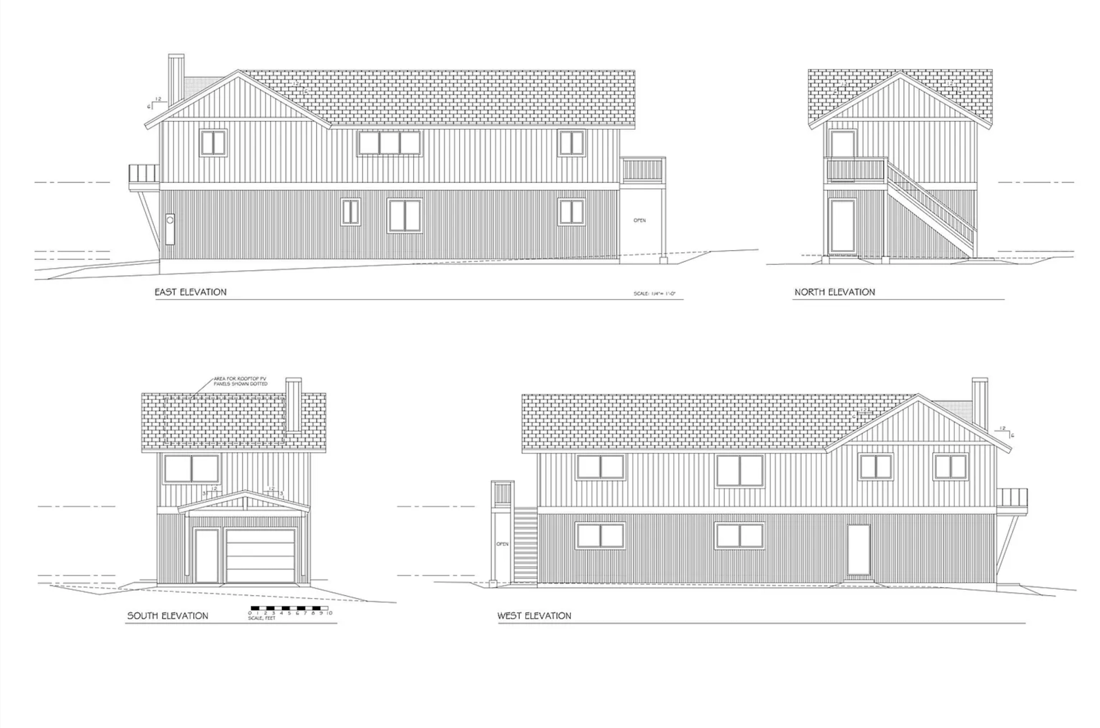
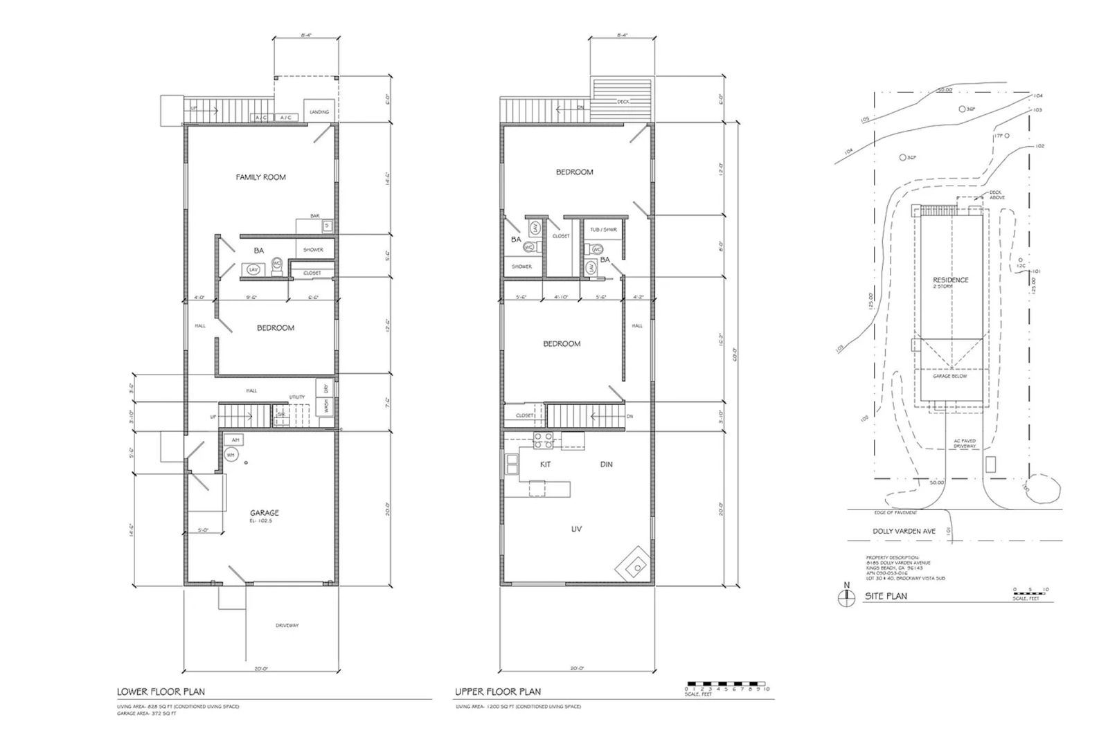
Prime Kings Beach Development Opportunity - Approved Plans & Paid Fees Included! Nestled in the heart of Kings Beach, this vacant lot presents a fantastic opportunity for developers or owner-builders. The purchase price includes the lot, approved plans, and all required development fees already paid, saving you time and money! The development package includes the $29,000 PUD Will Serve Letter Fee, a $7,500 School Fee, and a $5,600 Fire District Service Fee – all fully covered. With permits already in place, the project is ready for immediate commencement. The approved plans feature a beautiful two-story single-family residence, thoughtfully designed for modern living. The home is designed with three spacious bedrooms and three full bathrooms. On the ground floor, a generous family room with a wet bar opens directly to a private backyard, ideal for outdoor entertaining. The expansive living room seamlessly flows into the full kitchen, offering a great space for gatherings. The one-car garage offers parking for a vehicle and plenty of room for bikes and additional storage. Energy efficiency is a key feature, with a full solar system included to meet energy codes. Heating and cooling are provided by an efficient heat pump system. Additionally, a wood stove can be added at the owner’s discretion, adding a cozy touch to this already fantastic space. Conveniently located within walking distance to the lake, shopping, and all the services Kings Beach offers, this property is also within close proximity to the Kings Beach Elementary School and renowned North Shore Ski Areas. Whether commuting by car, transit, bike, or on foot, abundant employment opportunities are within reach, making this an ideal location for a new home. Don’t miss this turnkey opportunity to develop a high-quality home in one of Lake Tahoe's most desirable areas!