Property Tour
Enable Audio
Offered At
$1,100,000
0.22 acreLot Size

1927 Meade Street

One of the largest remaining developable lots in the coveted Sloan’s Lake neighborhood, 1927 Meade Street presents an exceptional opportunity just one block from the lake. This 9,520 square foot lot is zoned U-SU-C and is fully prepped for immediate development. The sellers had intended to build and have already completed significant pre-construction work: the lot has been cleared, and subsurface reports, structural and architectural plans, and pulled permits are all included and available upon request. However, the sellers have opted to purchase a completed new build instead—creating a phenomenal opportunity for the next owner or developer. Completed and in process new builds within the area ...

Features & Amenities

  • Mountain
  • Lake & Stream
  • Level
Video
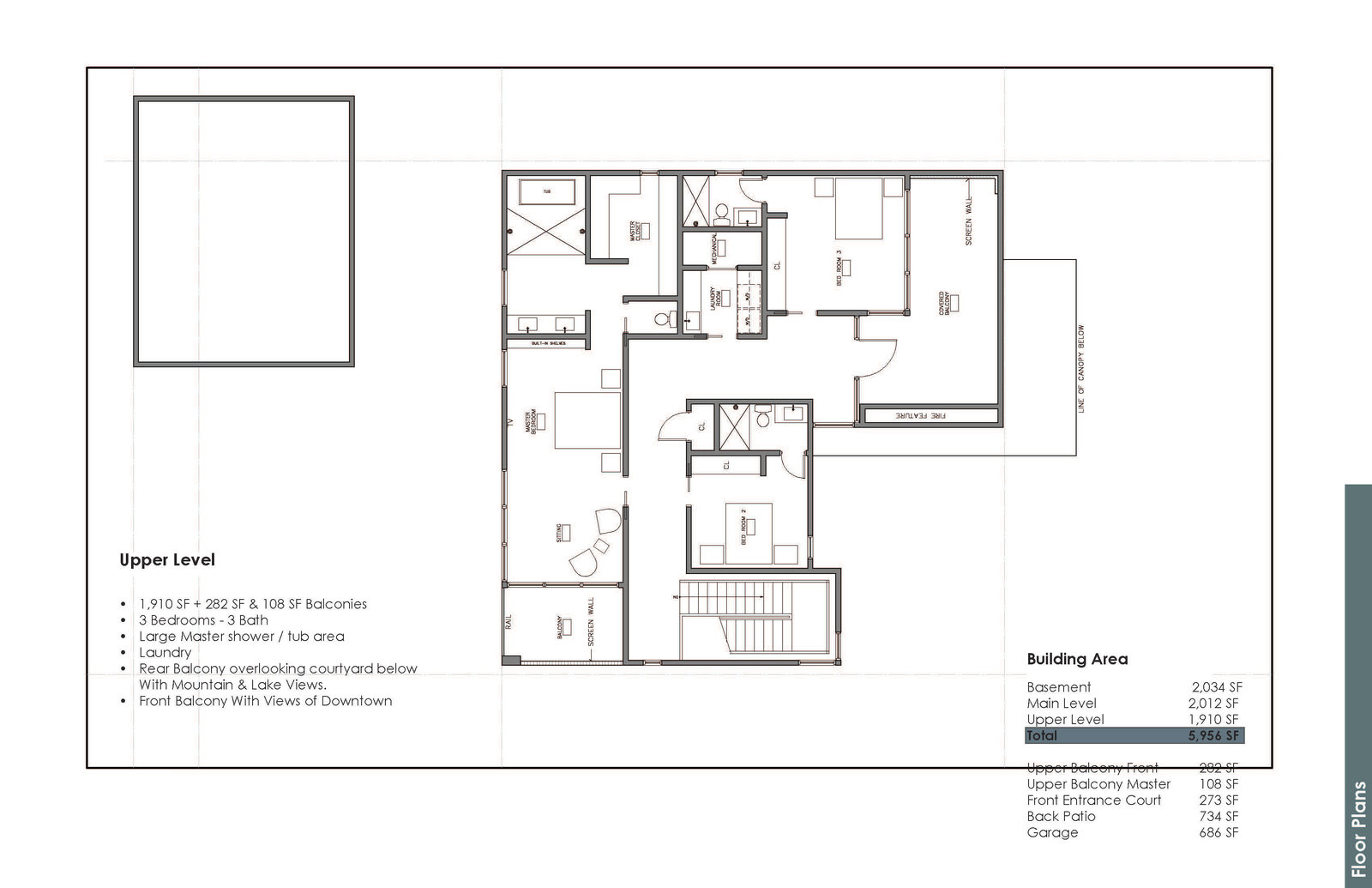
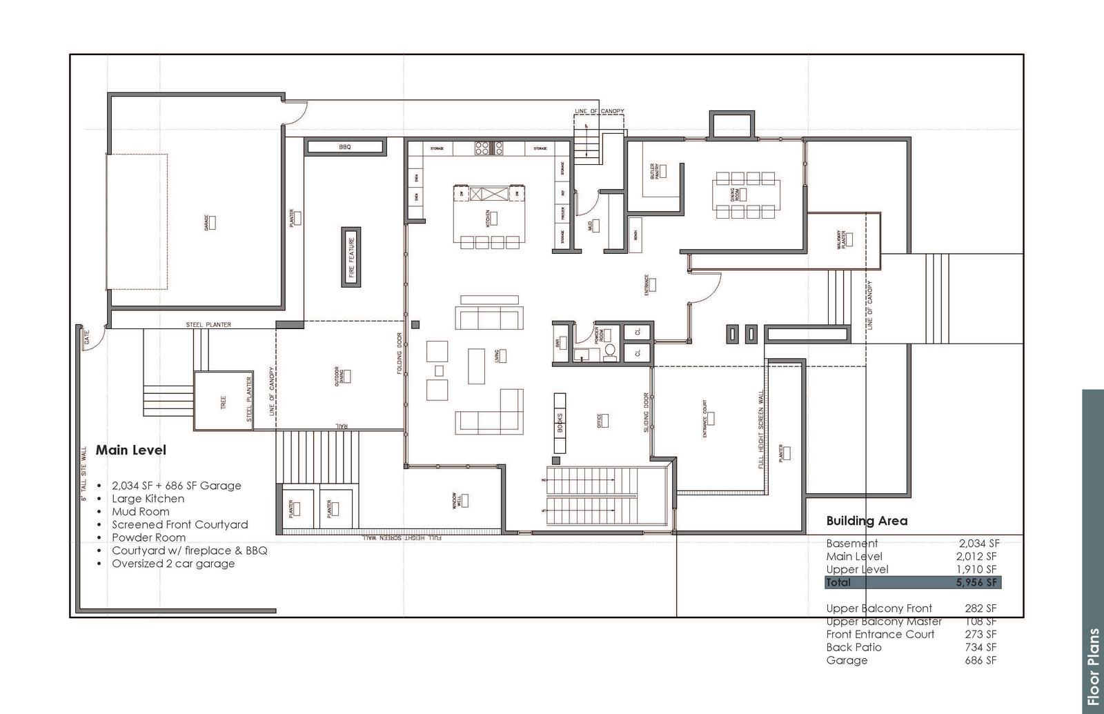
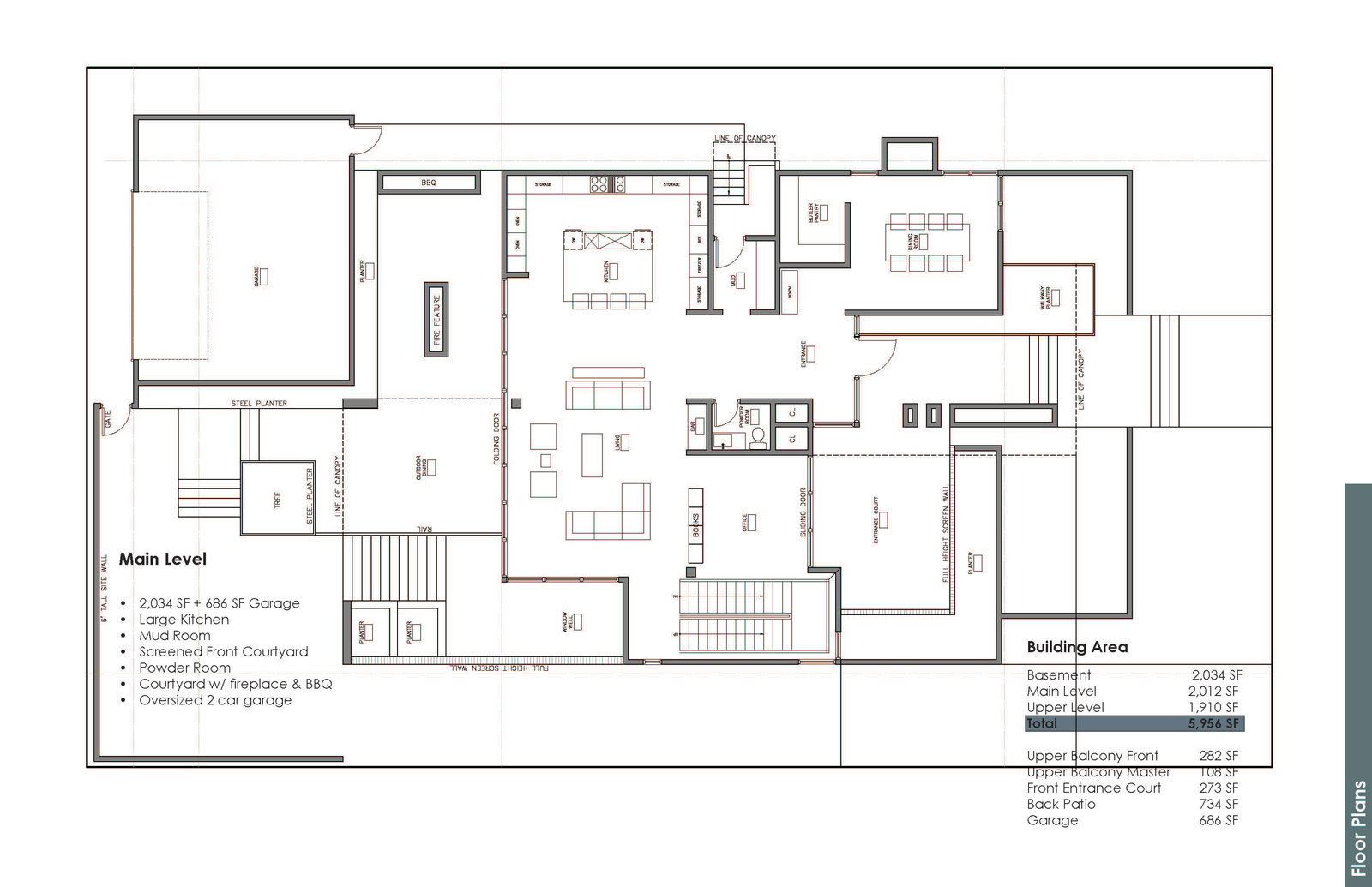
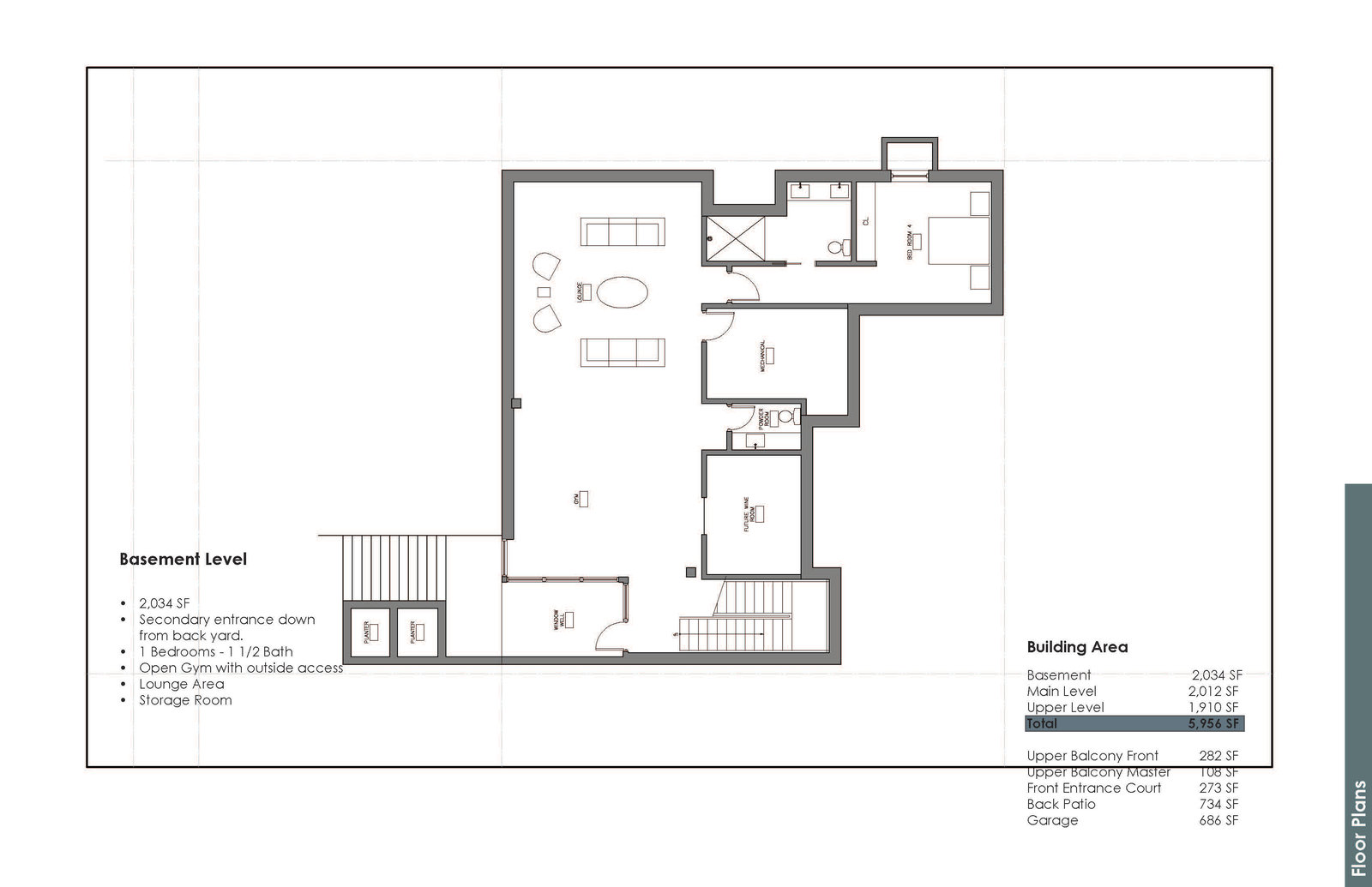
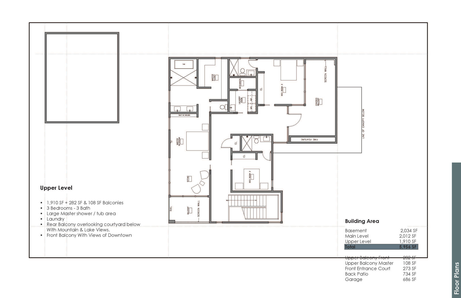
Floor Plans

Presented By

agent headshot
Anna Centron
Company
LIV Sotheby's International Realty
Phone
303-906-5793
Email
acentron@livsothebysrealty.com
License #
FA.100069909
1927 Meade Street
Denver, CO 80204

Get in touch

Send Inquiry
1927 Meade Street
Denver, CO 80204
Loading...