Flyers & Brochures
Open Houses
3509 Williston Loop
Land O' Lakes
,
FL
34639
Video
Photos
3D Tour
Floor Plans
Map
Contact
Menu
3509 Williston Loop
3509 Williston Loop
,
Land O' Lakes
Request Info
Video
Photos
View 26 Photos
3D Tour
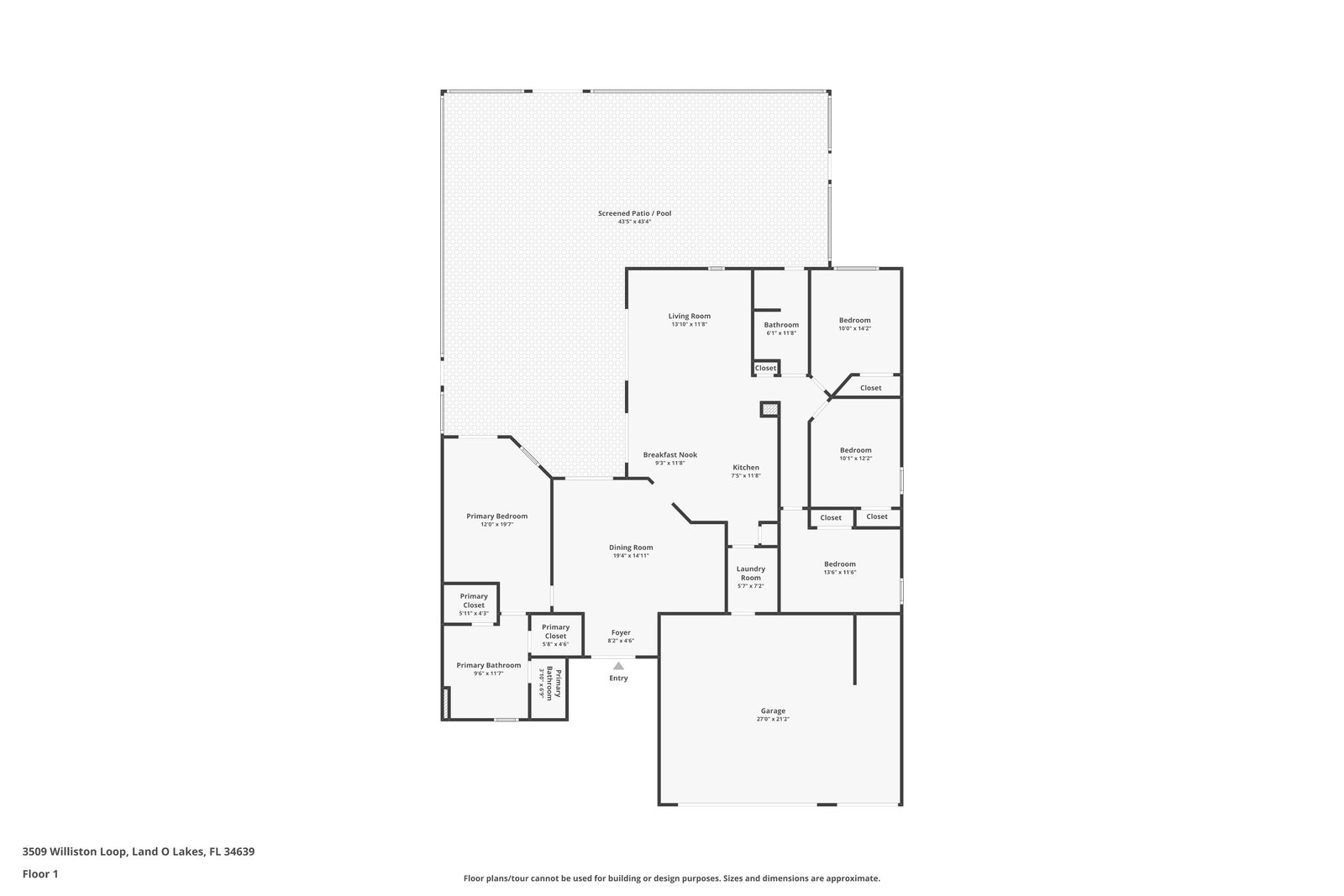
Floor Plans
Main Floor
Main Floor
Loading...
Map
3509 Williston Loop
Land O' Lakes
,
FL
34639
3509 Williston Loop
Land O' Lakes
,
FL
34639
Slideshow
Photo Grid
Loading thumbnails...
Loading...
×