Property Tour
Offered At
$413,000
2 Beds
1 Baths
1,200 sqftHome Size
0.09 acreLot Size

4897 E 100th Lane

Welcome to 4897 E 100th Lane, Thornton, CO 80229, a delightful two-story single-family home offering comfort and convenience in the heart of the Farmington neighborhood. This newly renovated 2 bedroom 1 bath home also features new flooring and paint throughout, complete renovation of bathroom and kitchen, new doors and trim, new lighting, deck and landscaping. This home spans approximately 1,200 sq. ft. built in 1999 with Solar panels fully owned with great savings on your energy bills. You will love the home's features including a cozy living area and a functional kitchen ideal for everyday living or entertaining. The two-story layout provides ample space, with a 1- car garage for added ...

Features & Amenities

  • Central A/C
  • Composition Shingle
  • Fenced Yard
  • Deck
  • Wood Siding
  • Mixed
  • Wall to Wall Carpet
  • 1 Car Garage
  • Attached Garage
  • Garage
  • Gas
  • City Water
  • Playground
  • Ceiling Fan(s)
  • Window Treatments
  • Smoke Detector
  • Forced Air
  • Association Fee
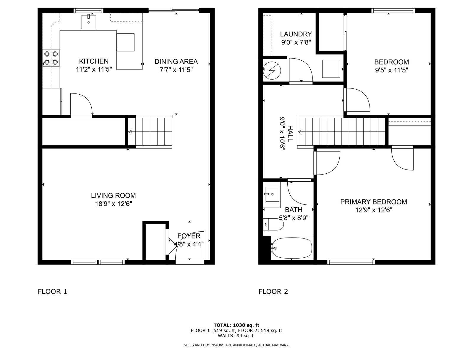
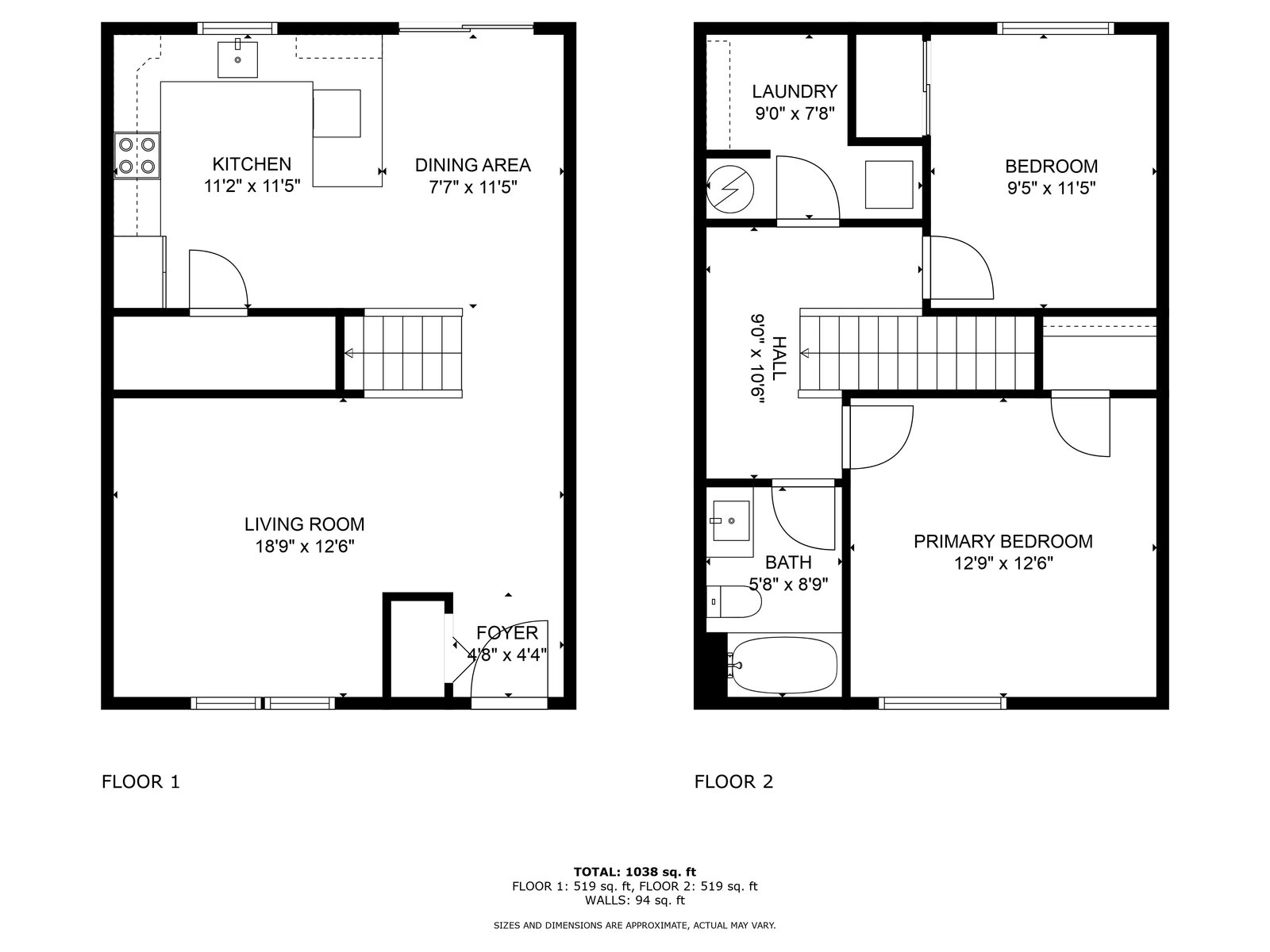
Floor Plans

Presented By

agent headshot
Alison Maltese
Company
LIV Sotheby's International Realty
Phone
303-249-8006
Email
amaltese@livsothebysrealty.com
License #
FA.100074507
4897 E 100th Lane
Thornton, CO 80229

Get in touch

Send Inquiry
4897 E 100th Lane
Thornton, CO 80229
Loading...