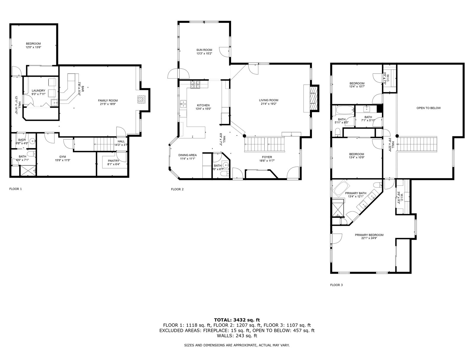
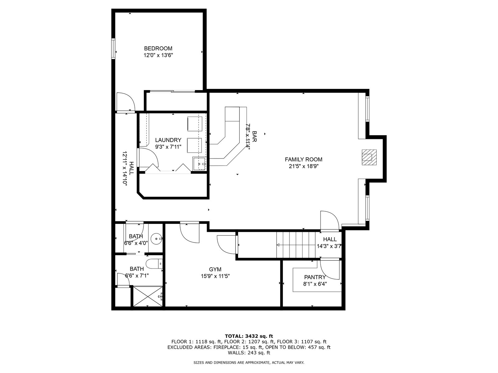
About the Property
Nestled into the Foothills of the Rocky Mountains on 11.42 acres your Shire Awaits!
Stunning gated sanctuary at the end of a very quiet paved cul-de-sac. Turn key ready with every detail meticulously maintained. Hardwood flooring throughout the entire main level and upper level. The kitchen remodel to include high end custom kitchen cabinetry, leather honed granite countertops, custom pantry and breakfast nook positioned with a cozy fireplace. The kitchen is equipped with a Cafe Platinum Glass smart refrigerator, stainless steel KitchenAid gas range with warming drawer, KitchenAid dishwasher, Breville counter top oven, single bowl composite sink & Zline microwave drawer. Oversized glass bi-fold custom doors in the breakfast nook open to the back deck. Imagine hosting gatherings and BBQ's on this spectacular deck. The dining room is positioned to take in the views. The Primary Suite is spacious to include 2 walk in closets and private deck! The primary bathroom is a spa like oasis! Enjoy the freestanding soaking tub, spacious walk in shower, double vanity, linen closet & in floor radiant heat. Soaring vaulted ceilings with log accents and custom stone gas fireplace. The floor plan of this home is very thoughtful with 3 upper level bedrooms & newly remodeled guest bathroom. The striking log staircase with iron railings makes a statement the moment you walk in. The lower level includes a guest bedroom, full bath & bonus room that is currently used as a gym. The recreation room is the perfect space for indoor entertaining. Professionally landscaped yard with an invisible dog fence and fenced front area. Imagine soaking in the hot tub and gazing at the stars. Oversized attached 2 car garage with new epoxy flooring, a heat system, built-in shelving and an EV charging station. Detached 2 car garage, built-in cabinetry and a workshop area. RV pad with electricity. Extensively fire mitigated with a metal/composition roof. Zoned A2, Well allows water for horses. No HOA