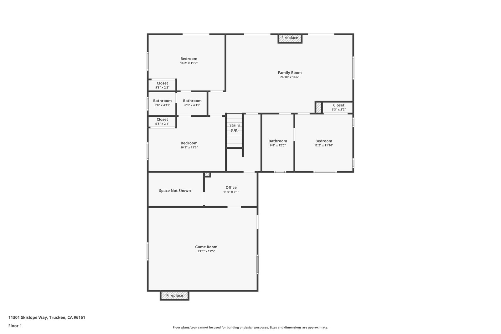
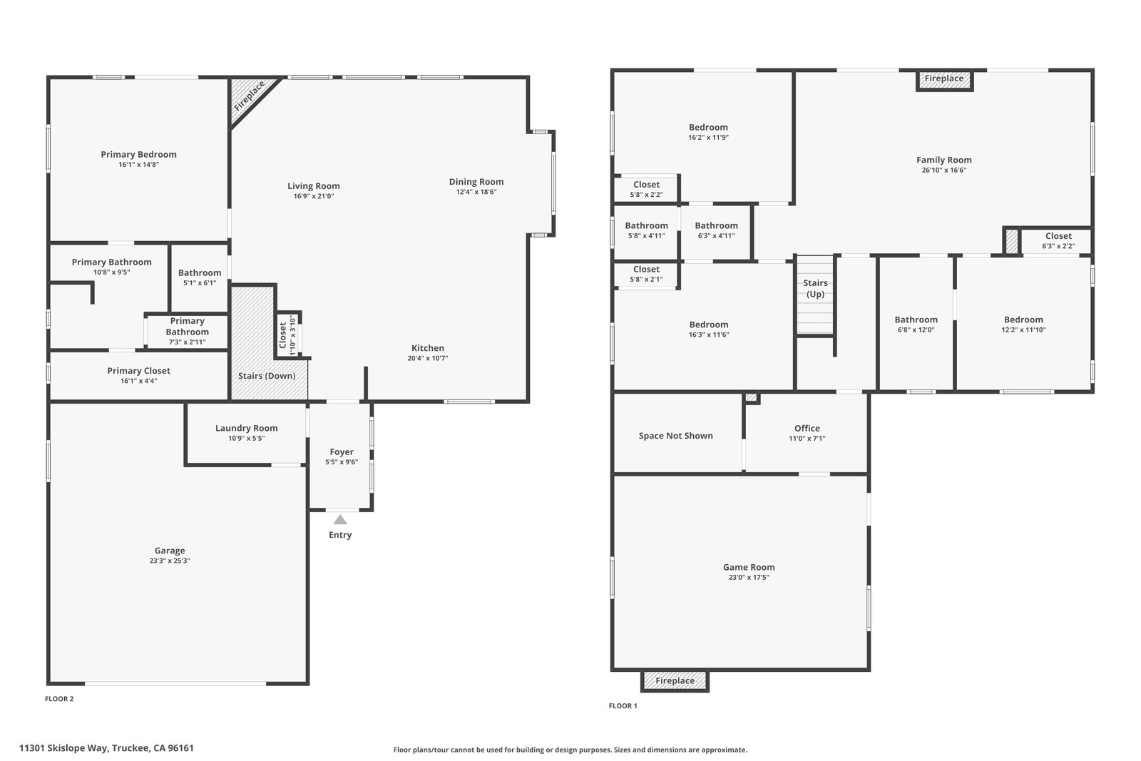
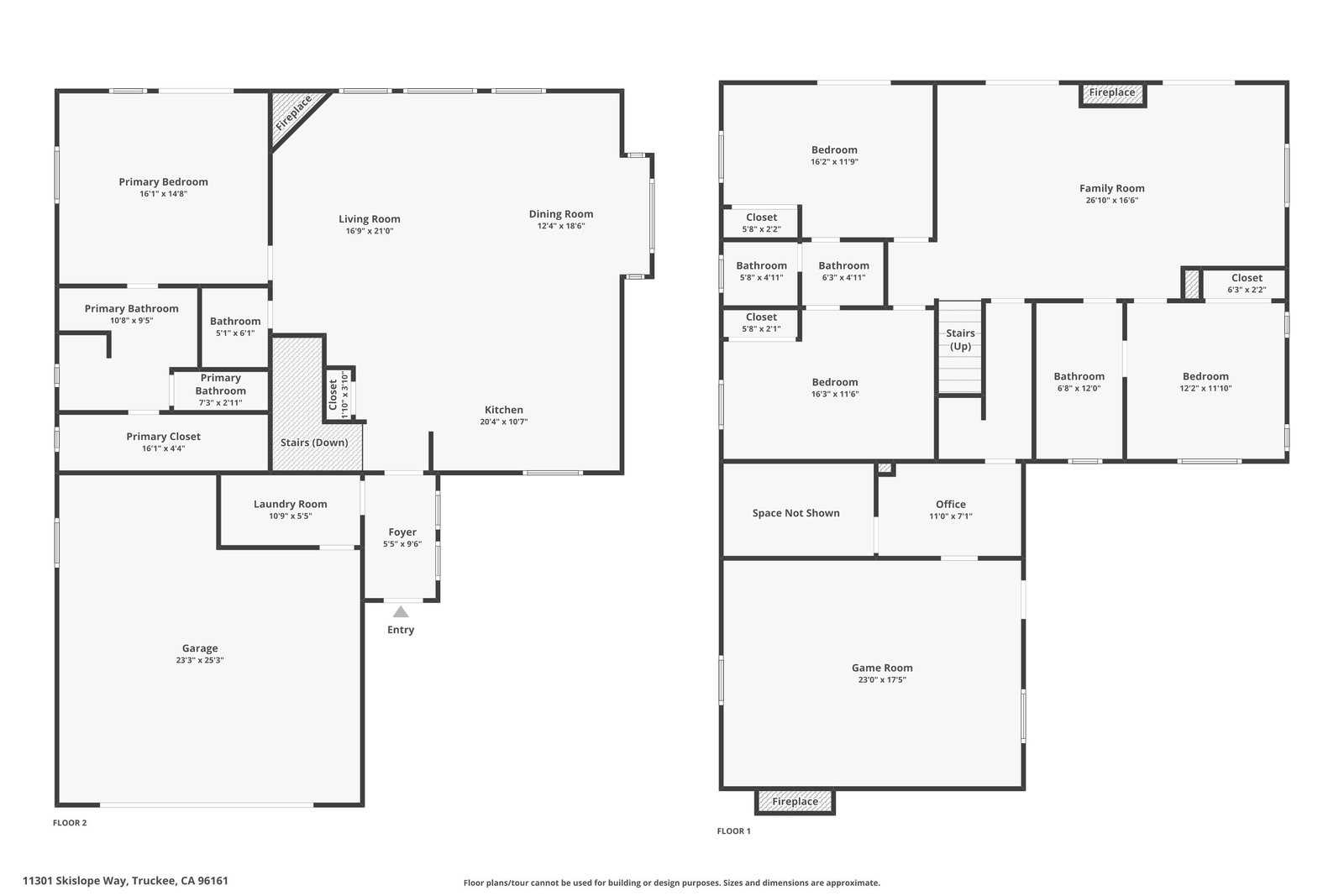
About the Property
Welcome to this beautifully crafted mountain retreat, thoughtfully constructed on a peaceful, private lot that backs to a vast greenbelt with miles of trails and open space, perfect for year-round outdoor adventure! Completed in 2016, this 4-bedroom, 3.5-bath home spans 3,343 square feet and offers a seamless blend of mountain modern comfort and practical design. Upstairs, the main level features a bright, open-concept great room with vaulted ceilings, warm wood finishes, and large windows that bring in natural light and forest views. The spacious living area is anchored by a striking stone fireplace and flows effortlessly into the dining area and well-appointed chef’s kitchen. Just off the great room is a sunny back deck, ideal for entertaining or unwinding after a day on the trails. Also on this level, a convenient half bath and the luxurious primary suite, complete with heated bathroom floors and private deck access for a tranquil start to your mornings. Downstairs, the floor plan expands into a second living area with a custom fireplace, a large ensuite guest bedroom, two additional bedrooms one of which has direct access to the lower deck, and a shared Jack & Jill bathroom. A private office provides a quiet place to work or study, while a spacious recreation room with its own fireplace and bar area offers the perfect spot for game nights, movie marathons, or hosting guests. Additional highlights include heated floors in all full bathrooms, covered hot tub, fire sprinkler system, reverse osmosis water filtration system, and a wired generator panel for peace of mind. A generous garage and flat parking area offers ample space for all your Tahoe toys and gear. Tucked into a tranquil setting on lower Skislope Way providing easy access to Truckee and all of Tahoe Donner’s top-tier amenities, this home offers the best of mountain living in every season!