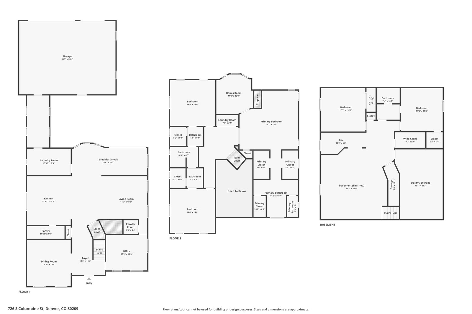
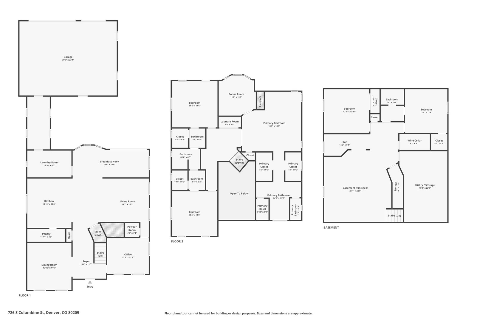
About the Property
Refined and refreshed in 2021, this three-story Tudor residence rests along one of Bonnie Brae’s most admired blocks, offering over 5,400 square feet of thoughtfully designed living space. A stately stone façade sets the tone for timeless architecture paired with modern remodel. A dramatic two-story entry and soaring ceilings welcome you inside, where newly refinished hardwood floors extend throughout the main level. Beyond the foyer, a formal dining room and private office provide elegant spaces for work and gathering, while the open kitchen and living suite is framed by coffered ceilings and graceful arched walls. The gourmet eat-in kitchen features generous bar seating at the island, a built-in dining nook, and a walk-in butler’s pantry with beverage drawers. A mudroom with laundry and custom storage connects via a breezeway hallway to the attached three-car garage, which includes coated floors, built-in storage, and organizational buildouts. A powder bath completes this level. The second level is centered around a spacious primary suite with fireplace, dual walk-in closets, and a generous five-piece bath. An adjoining bonus room offers exceptional versatility--perfect as a nursery, office, or private sitting area. Two additional bedrooms share a Jack-and-Jill bath with separate vanities, complemented by a second laundry room near the primary suite for ultimate convenience. The fully finished lower level offers a spacious living area, two additional bedrooms (one with ensuite bath), a wet bar, climate-controlled wine cellar, and utility/storage space. Outdoors, a paved patio with built-in heater, low-maintenance turf lawn, and front and backyard fencing create a private setting for entertaining. Situated moments from Wash Park, Bonnie Brae Ice Cream, and the boutiques of South Gaylord, this residence offers a rare blend of classic grandeur and everyday livability.