About the Property
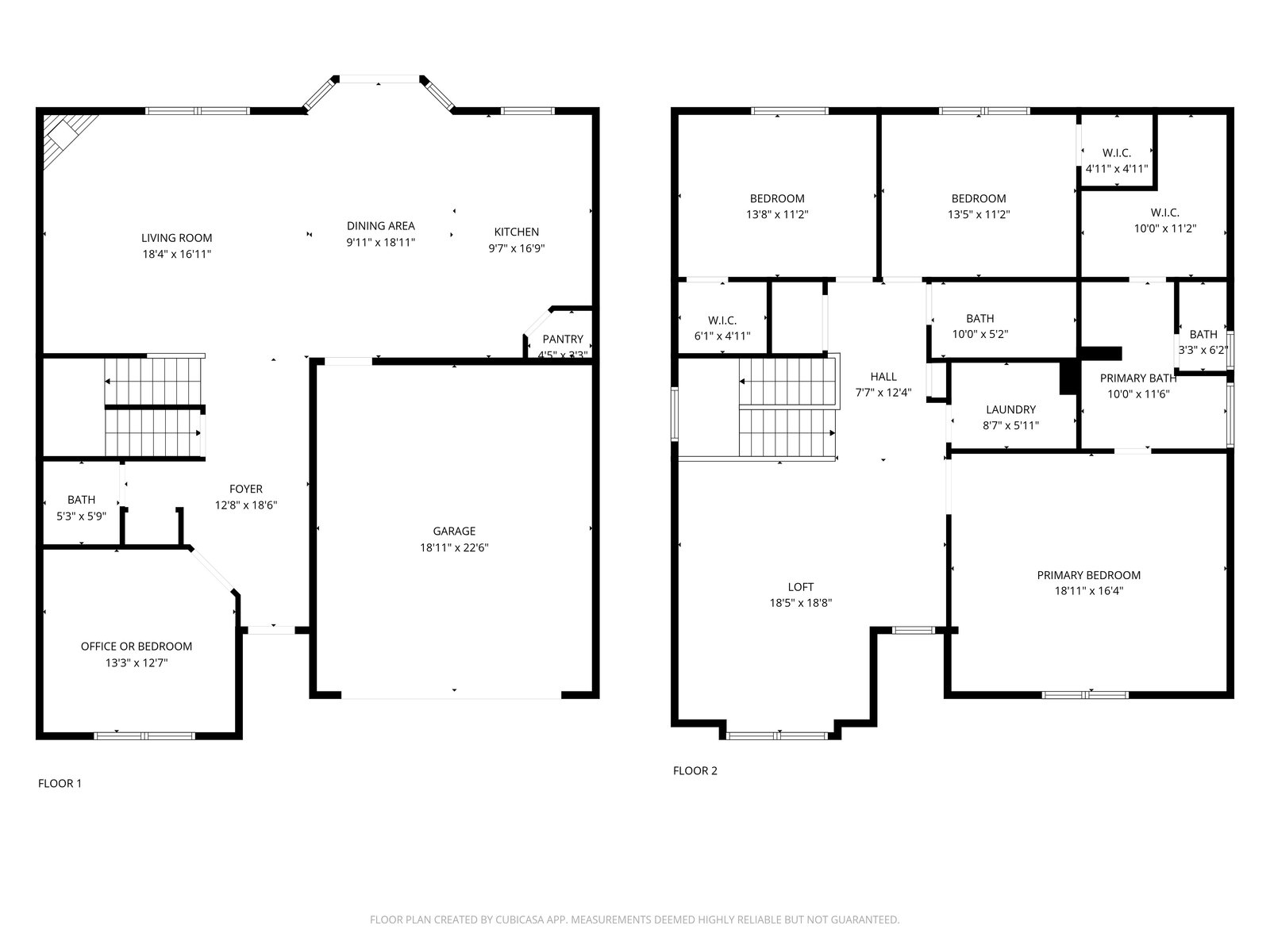
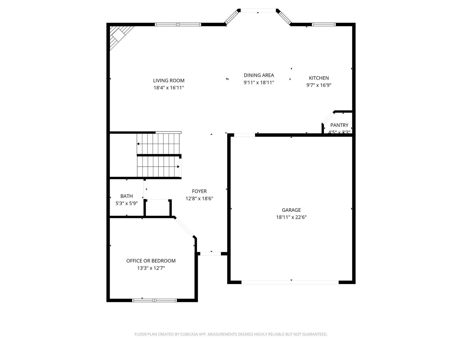
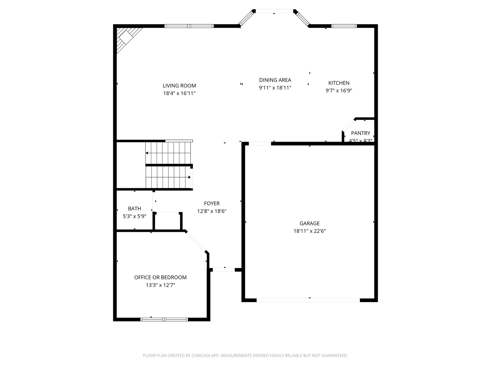
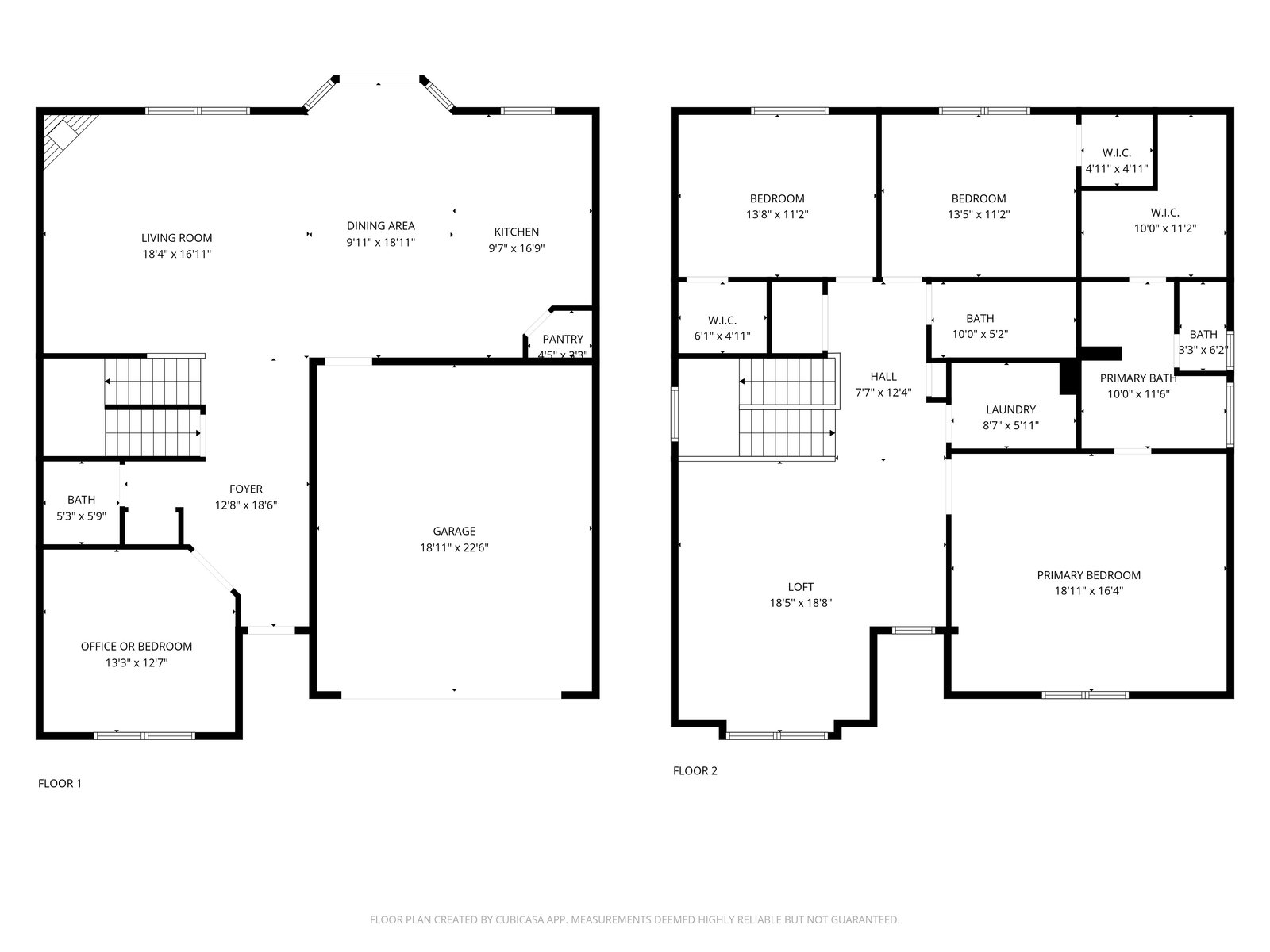
The One That Feels Like Home – This thoughtfully designed 3 bed, 2.5 bath home and offers comfort and flexibility. Located in The Enclaves at Mountain Vista Ranch, this property includes a versatile main-level space that can function as a home office or 4th bedroom to fit your lifestyle needs. The open-concept main floor features a bright kitchen with granite countertops, stainless steel appliances, pantry and center island—flowing seamlessly into the dining and living areas. A stone-surround fireplace adds warmth and charm for those chilly Colorado nights, while sliding doors lead to the patio and fenced backyard, perfect for outdoor gatherings. Upstairs, the spacious loft offers ideal space for a media room, home gym, or second living area. The primary suite includes a luxurious en-suite bath with soaking tub, glass-enclosed shower, and walk-in closet. Two additional bedrooms also include walk-in closets, providing ample storage. The upstairs laundry room is functional and spacious, with built-in storage and easy access from all bedrooms. Enjoy mountain views from the upper level and the convenience of being close to the growing Marksheffel corridor. You’ll get quick access to restaurants, retail, theaters, with more on the way. Located in School District 49, with convenient commutes to central Colorado Springs and beyond. Don’t miss this opportunity to own The One That Feels Like Home in a rapidly growing east side community!