About the Property
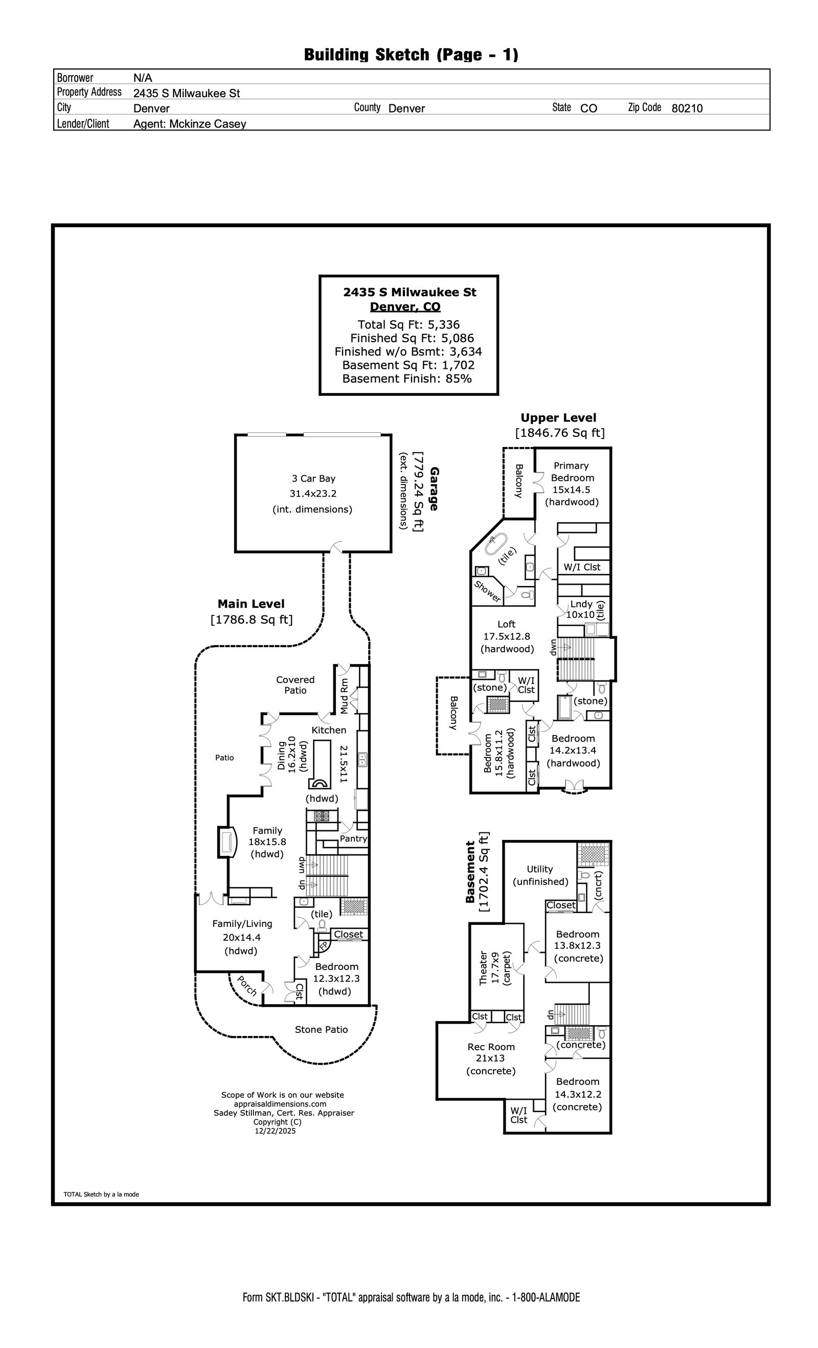
Some homes are noticed at first glance, while others earn attention through craftsmanship. Set on the most desired block in Observatory Park, this residence does both, with thoughtful 2025 renovations supporting its architectural detail, scale, and presence. This Spanish-style home is grounded in lasting materials and tailored finishes with dramatic arched windows and doorways and custom wrought-iron detailing that establish permanence from arrival. Inside, more than 5,000 sq ft unfold with purpose. Nine-foot hand-scraped Eastern white pine floors run through the main level, where two living areas, each with a fireplace, support daily life and entertaining. A private front bedroom with a nearby 3/4 bath provides valuable main-floor living and flexibility for guests or multi-generational needs. Striking green leathered granite countertops define the kitchen, pairing with professional appliances including a six-burner Viking range with double ovens, Sub-Zero refrigerator and wine cooler, Miele dishwasher, Bosch espresso maker, and Dacor microwave. Hammered copper sinks, a custom metal hood, island seating, built-in coffee and dry bar, and a walk-in pantry reflect durable and intentional design. Custom double doors connect living and dining spaces to a landscaped backyard with patios, covered outdoor space, and water feature. A mudroom with built-in storage links to the detached three-car garage. The upper level includes a bright open flex space with skylights and a primary suite with private balcony. The fully remodeled primary bath features soaking tub, walk-in shower with new tile, dual vanities, and marble flooring. The impressive custom walk-in closet and nearby laundry with abundant cabinetry and ironing station add convenience. Two additional bedrooms each have en suite baths and balcony access. The basement offers soaring ceilings, a large recreation room, two bedrooms with en suite access, and a theater room, providing ample space for play, guests, or hobbies.