About the Property
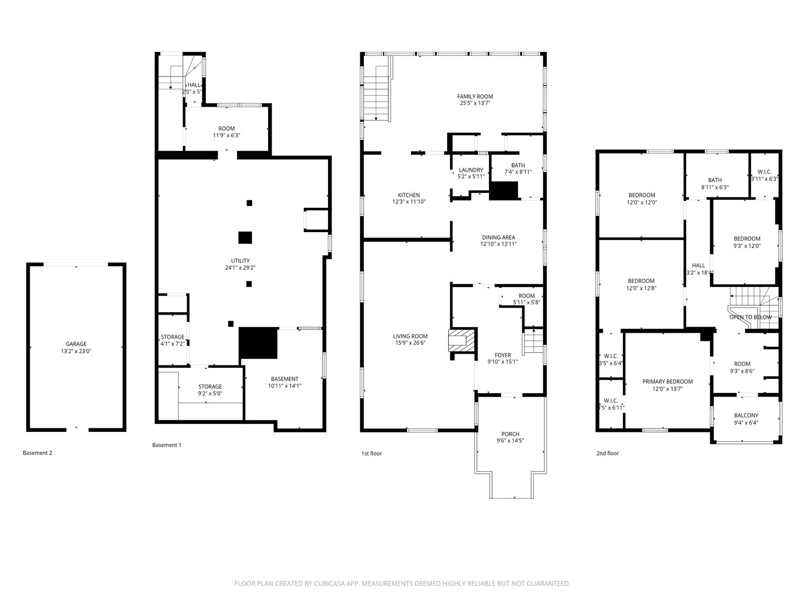
Built in 1903, this classic Victorian blends enduring craftsmanship with everyday livability in Pueblo’s sought-after Northside/Avenues neighborhood. The fieldstone foundation, known for its strength and longevity, reflects the integrity of early construction and the quality that has allowed this home to stand the test of time. A welcoming covered porch with double columns and a solid oak entry door opens to a gracious foyer showcasing a Douglas fir staircase and period wrought-iron light fixture. The expansive living room is filled with natural light from oversized windows and anchored by a wood-burning fireplace. A formal dining room with inlaid shelving flows into the kitchen, featuring stainless steel appliances, butcher block countertops, Moroccan-style tile backsplash, and eat-in area. A sunroom extends the main-level living space, while a ¾ bath and laundry complete the floor. Upstairs, you’ll find four bedrooms and a full bath. The primary suite includes a reading nook and private balcony, an ideal perch for sunrise coffee or unwinding at day’s end. The backyard offers shade from mature trees along with fruit-bearing peach, plum, and cherry trees that provide seasonal beauty and abundance. A detached one-car garage adds convenience. Surrounded by well-maintained historic homes and neighbors who value preservation, this property presents a rare opportunity to restore and personalize a true Northside original. Rich in architectural detail and supported by strong bones, it is ready for thoughtful updates and renewed stewardship, an invitation to honor its past while shaping its next chapter.