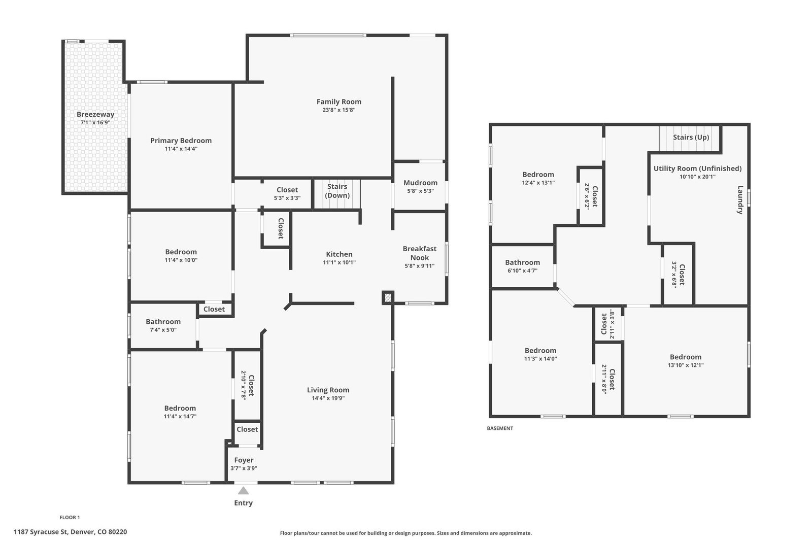
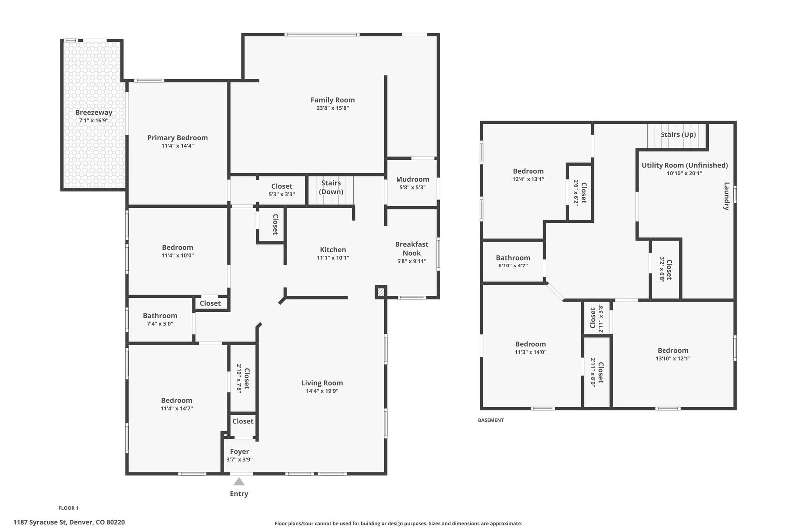
About the Property
This Denver ranch is the kind of home that fits into your life and makes it easier. It works just as well for a first chapter as it does for a smart final move, you can purchase it all for yourself, rent part of it, or keep it as a low-stress investment. Nothing here feels overdone. It just feels right.
Inside, the updates are the kind you actually care about. Brand-new windows, fresh blinds, durable easy-to-maintain flooring, and a new A/C installed in April 2024 take the heavy lifting off your plate. The kitchen is set up with modern appliances, all under warranty, so you can settle in without a running list of future replacements. A hard-to-find handicap-accessible entrance adds real flexibility for how this home can serve you now or down the road.
Out back, there’s space to breathe. Garden beds, a side yard, and room to shape the backyard into whatever fits your lifestyle. The exterior was recently painted and includes a warranty, offering peace of mind before you even move in. The converted garage adds bonus living space that works as an office, guest room, or hangout, and can easily be returned to a one-car garage if needed.
Located minutes from Lowry, Central Park, and the restaurants and shops along Colfax, this home puts you close to everything while still feeling grounded. It also qualifies for Denver’s short-term rental rules when used as a primary residence, with mid- and long-term rental options as well. A flexible home in a convenient spot, ready to meet you where you are and grow with what’s next.