About the Property
Located in the prime of One Polo Creek, this residence offers over 2,700 square feet of refined living with exceptional views and full-service amenities overlooking Cherry Creek.
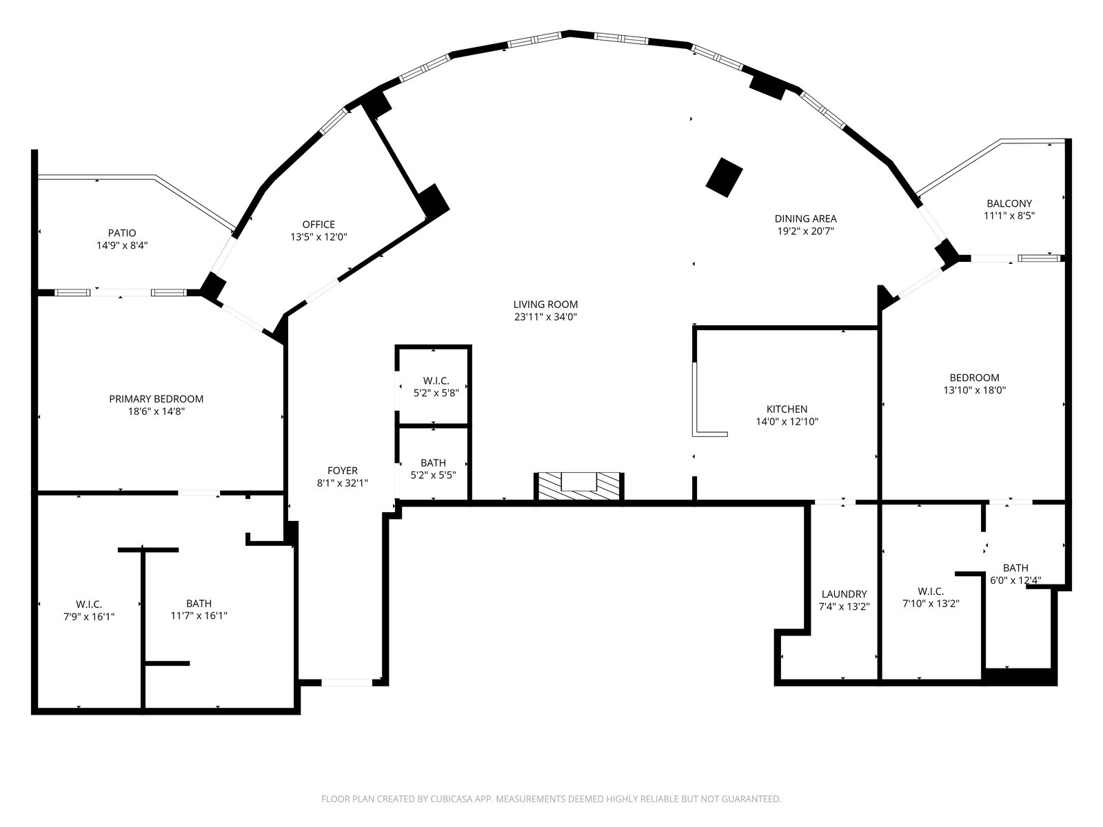
The extremely well designed floor plan features two bedrooms (ideally separated), two and a half bathrooms, and a wide, gallery-style entry ideal for showcasing art and collections. Hardwood flooring extends throughout the main living areas, complemented by plush carpeting in the bedrooms. A wall of bay windows anchors the living space, capturing sweeping views of the reimagined Cherry Creek corridor, Downtown Denver, and the mountains beyond.
The primary suite is a true retreat, featuring a generous walk-in closet, built-in entertainment center, and an adjoining private office that opens to a patio—perfect for working from home or just escaping to gain ***. The secondary bedroom offers comfortable accommodations for guests.
The large kitchen benefits from an exceptional pantry and laundry room with abundant storage, a beverage refrigerator, and an additional full-size refrigerator—an ideal setup for entertaining and everyday convenience. You will appreciate the tremendous counter space and generous cabinets throughout.
One Polo Creek residents enjoy 24-hour concierge services, a well-equipped fitness center, multipurpose club and conference rooms, visitor suites, a catering kitchen, and a private, park-like outdoor recreation area. This home combines a great floor plan with an expansive circular wall of windows in one of Denver’s most desirable locations.