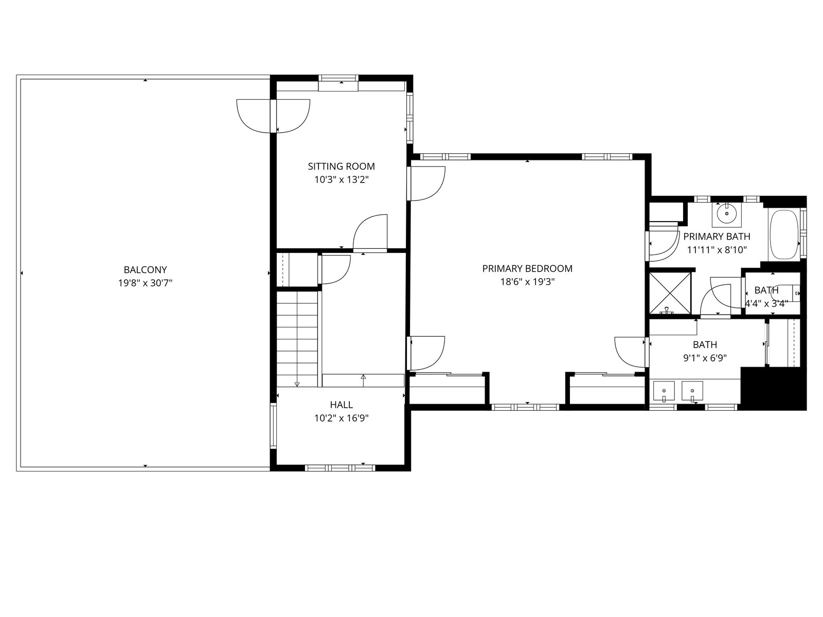
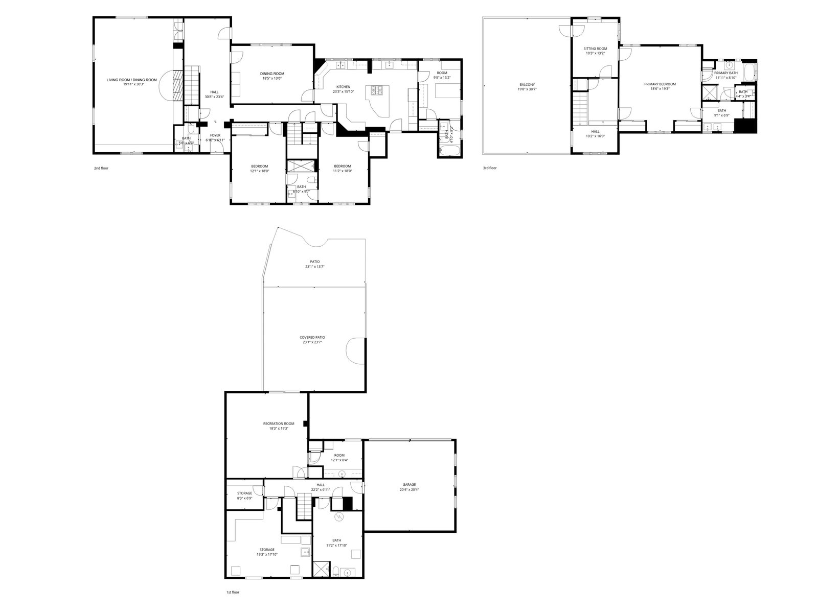
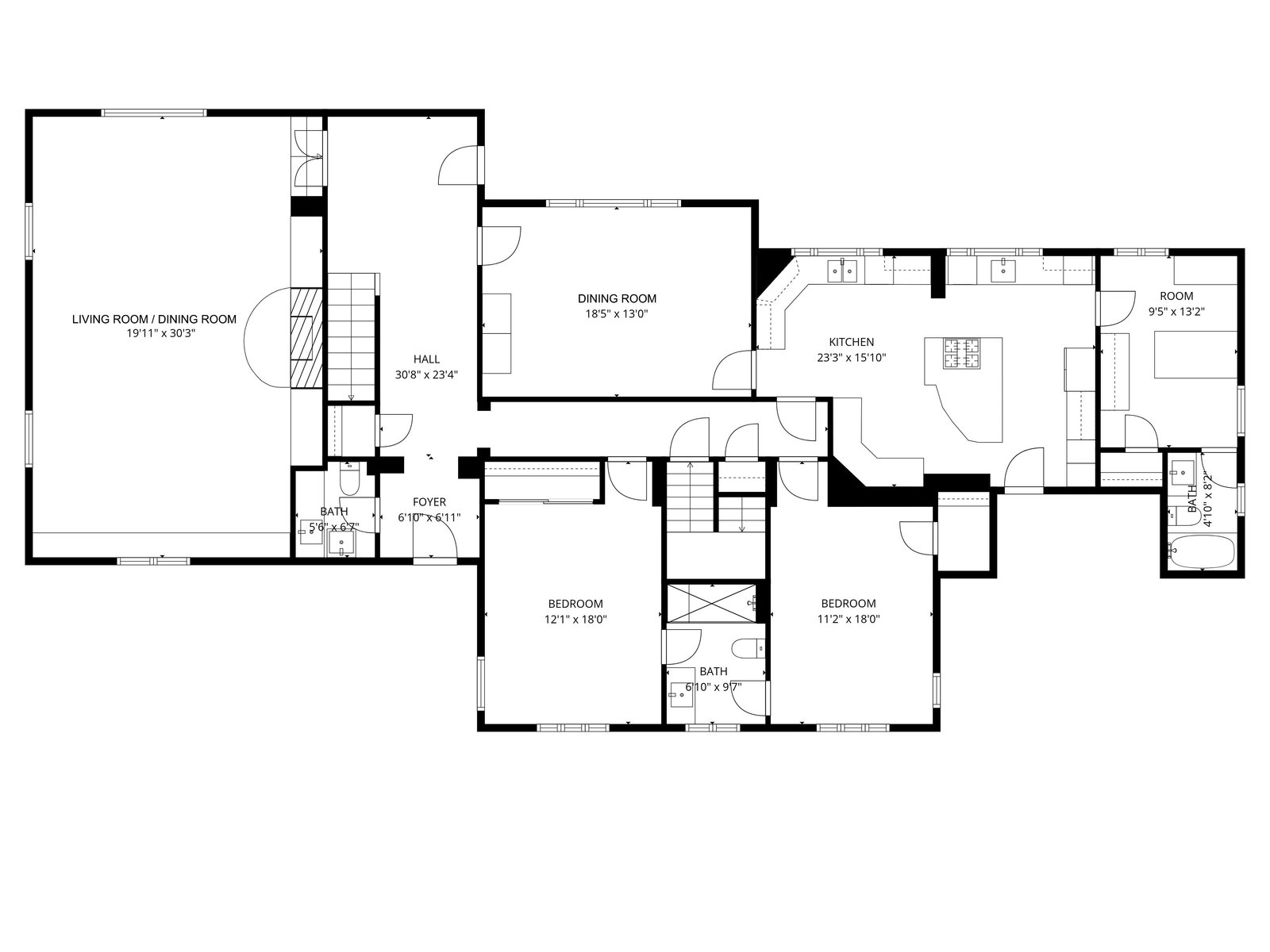
About the Property
Bienvenido a casa! Introducing the Harold Florman House, a rare and authentic 1939 Pueblo Revival, one of the few true examples from the original 1900–1940 era gracefully set on nearly 2 acres in Aberdeen. A designated Pueblo Historical Landmark and featured on the Denver Botanic Gardens registry, this is a once-in-a-lifetime offering. Rich in character and craftsmanship, the home showcases original hardwood, terra cotta tile, and art deco laminate flooring, hand-painted tilework and murals, vitrolite accents, plaster walls, hand-carved wood details, kiva fireplace, vigas, latilla and beamed ceilings. Both formal and informal living spaces create warmth and versatility throughout. The upper-level primary suite is a private retreat including ensuite, sitting area with kiva fireplace and custom built-ins, dressing space, and rooftop access with potential for a secluded outdoor oasis. The main level offers a grand entry, spacious living and dining areas, kitchen, 3 bedrooms, and 2.5 baths. The lower level features a family room, cantina-style wet bar, laundry, storage, garage and additional surprises. A separate casita with bath provides ideal guest or studio space. Outdoors, discover a truly magical setting; two natural springs, a year-round pond with koi, meandering paths, charming bridges, and a vine-covered trellis with wood-burning fireplace for unforgettable entertaining. The only residential property in Aberdeen on 1+ acre, this nearly 2-acre sanctuary offers privacy, beauty, and incredible sunset views overlooking the Arkansas River and Pikes Peak beyond with immediate access to City Park. Offered to the public for the first time with only three stewards in its history, this 4,608 SF legacy property awaits its next caretaker.