About the Property
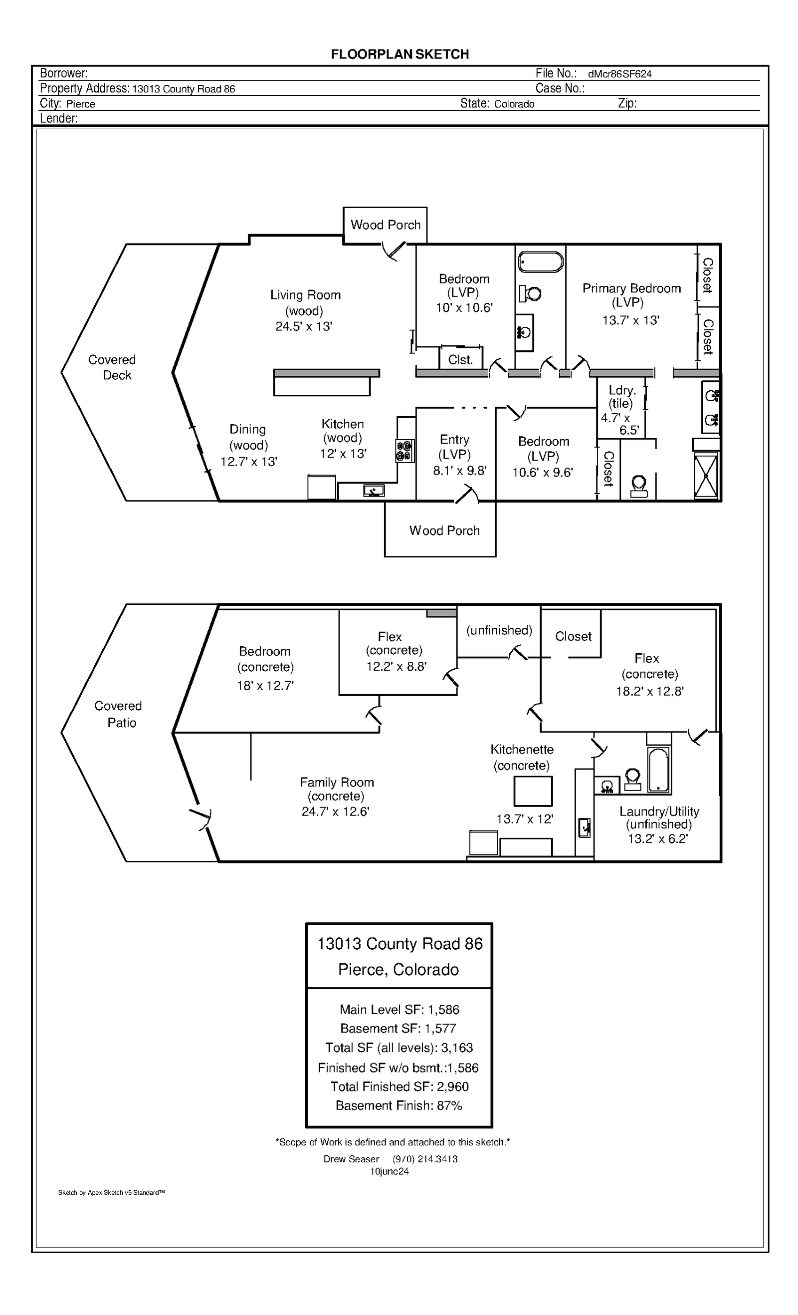
Stunning equestrian estate on 48+ acres with panoramic views of the Colorado Rocky Mountains. This updated ranch style home with a walkout basement features an open floor plan with floor to ceiling windows, a spacious living and dining area, and a fully updated kitchen with a large island and gas stove. The main level includes the primary suite and two additional bedrooms. Recent improvements include refinished wood floors, new interior and exterior paint, updated decking with some Trex, a new turf backyard, new yard fencing, and added mini splits for comfort and efficiency. The walkout basement offers two additional bedrooms, a full bathroom, flex or office space, a laundry room, and a kitchenette, creating an ideal setup for multigenerational living, a mother in law suite, or rental income. Equestrian facilities are exceptional. The 48x44 barn includes three 16x16 stalls with 32 foot runs, a large tack room, and feed storage. The property features multiple pastures and paddocks designed for rotational grazing and easy livestock management. Several lean to shelters include electrical access and automatic waterers, and a separate small animal pen accommodates goats, pigs, chickens, or quarantine needs. Additional hay storage buildings and equipment bays add convenience. The 150x250 roping arena with alleyways is ready for training and events. A full circle driveway allows easy access for large trailers and semis. A detached garage and shop with a powered loft provides additional storage and workspace. Located just 15 minutes from Fort Collins, Windsor, and Eaton, this move in ready property offers an exceptional blend of acreage, views, and equestrian amenities.