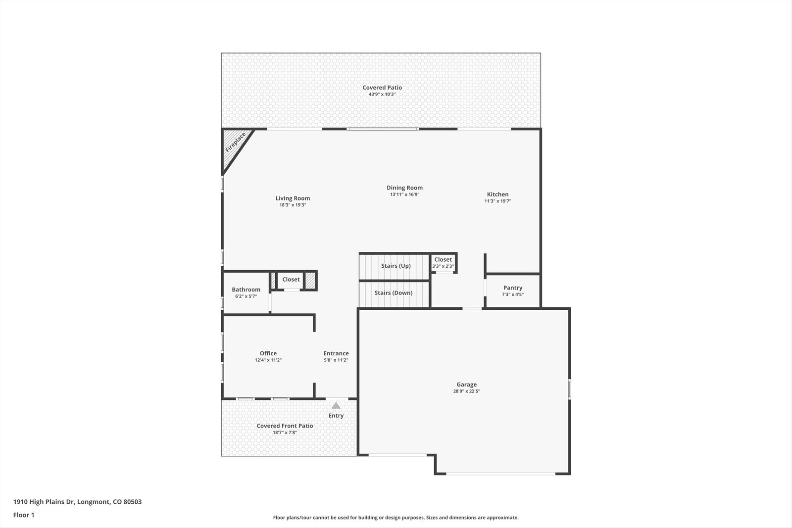
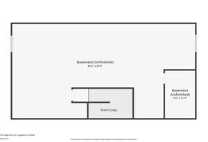
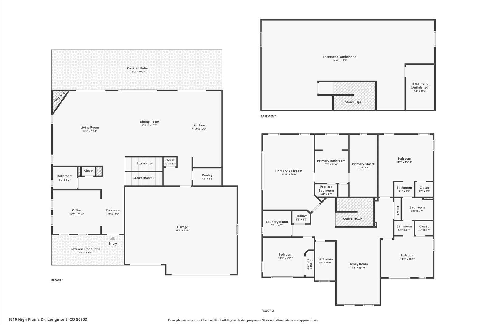
About the Property
Welcome to 1910 High Plains Drive, a rare Front Range gem of a home where you'll enjoy the feel of a country lifestyle - wide open skies, unobstructed Rocky Mountain views, and direct trail access - without sacrificing suburban convenience or urban access! From the front of the home, the panorama of Mt. Meeker and Longs Peak is immediate and unfiltered. A permanently preserved green space at the end of the cul-de-sac protects those views and keeps the horizon open year-round. Originally purchased new in 2019 and built out with every available builder upgrade, this four-bedroom Yukon model is move-in ready with finishes that exceed comparable homes nearby. The generous upstairs loft functions as a true fifth room with its own mountain view. The primary suite closet is one of the most thoughtfully designed you'll find at this price point. Dual sliding doors connect the main living area to a spacious covered porch - bright and functional across three seasons (now four). Outdoor access is exceptional. The Open Sky Loop trail system is steps away, offering pavement-free running and cycling through some of Colorado's most scenic terrain. Blue Skies Park, Dry Creek Park, and Clover Meadows Park are all minutes away. For cyclists, world-class gravel riding begins at the doorstep. The setting delivers a genuine country feel - open land, big views, and virtually immediate trail access - within a well-established neighborhood. Children can walk to every grade, kindergarten through twelfth, just blocks away - a genuine rarity on the Front Range. Whole Foods, King Soopers, and the broader amenities of Longmont are five to eight minutes away. Boulder jobs, dining and entertainment are as little twenty minutes away. This is a home and a lifestyle that rarely become available. Make it yours before its gone!