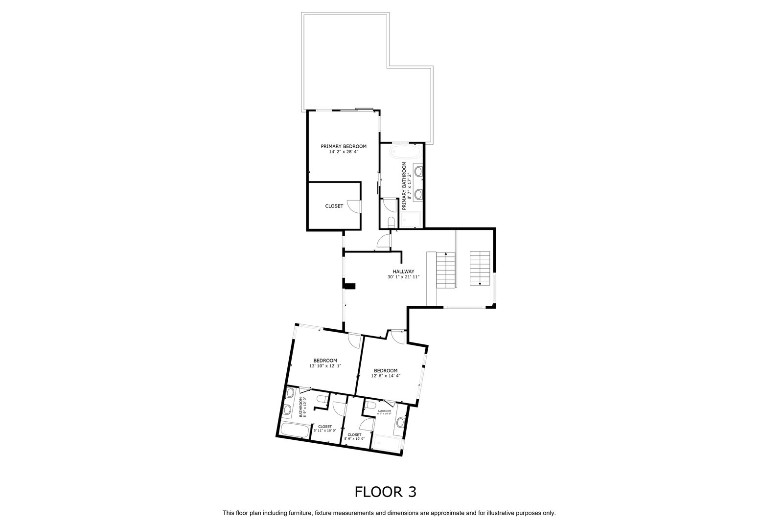
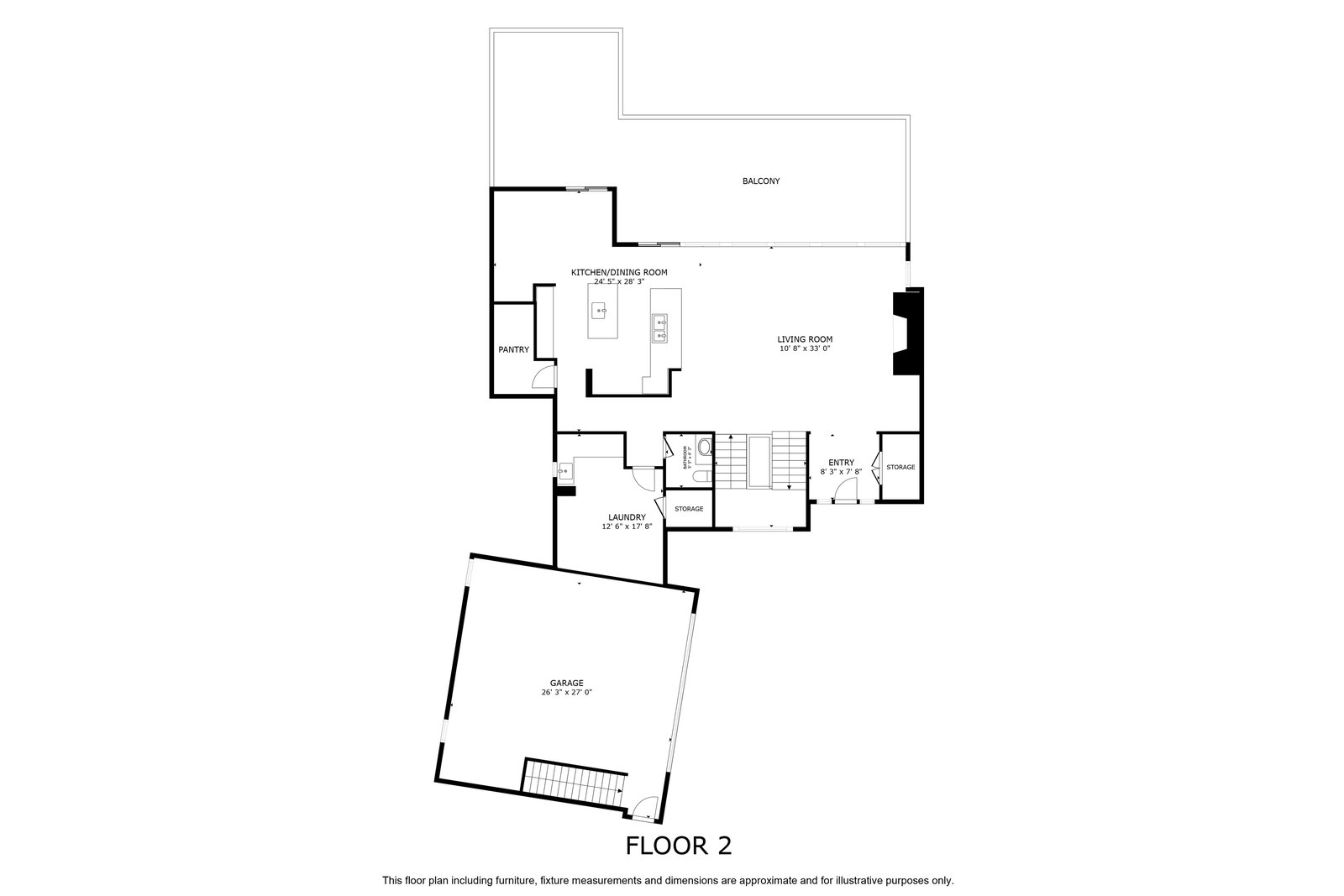
About the Property
A spectacular single-family home in West Vail, this 5-bedroom, 4.5-bathroom mountain modern residence offers 5,207 square feet of living space on a .355-acre lot just minutes from Vail Village. Designed by Berglund Architects and built by Vail Custom Builders in 2017, the home reflects contemporary alpine architecture with natural stone and wood siding beneath a durable metal roof. Inside, soaring vaulted ceilings and expansive windows frame mountain views and anchor the great room around a statement stone fireplace, creating an ideal setting for both entertaining and relaxed mountain living. The chef's kitchen features Wolf and Sub-Zero appliances, a large island, and a dedicated pantry, seamlessly connecting to a covered outdoor deck complete with heaters and a gas fireplace--perfect for year-round enjoyment. Radiant heat runs throughout the home, with air conditioning in the upper-level bedrooms for summer comfort. The walk-out lower level includes a spacious family room, wet bar, and wine cellar, with direct access to the patio, yard, and fire pit area. Upstairs, the primary suite offers balcony access, air conditioning, and a spa-inspired bathroom with a steam shower. Additional highlights include a heated four-car garage and the rare advantage of no HOA. Ideally located in West Vail, just minutes to Vail Village skiing, dining, and shopping, with immediate access to trails, Ellefson Park, and the in-town bus line, this home offers the ideal balance of accessibility, comfort, and modern mountain design.