About the Property
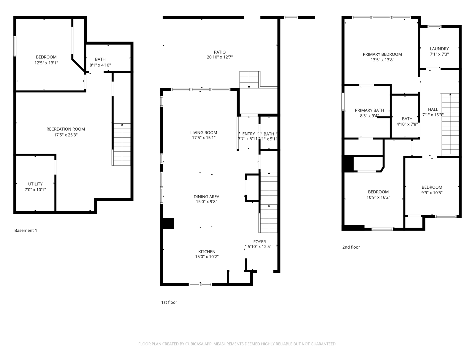
Updated to be a forever home, but life had other plans. 4 bedrooms! Welcome to this stunning home located in the highly desirable Beeler Park featuring high end upgrades, virtually all new light fixture, all new kitchen appliances and designer finishes throughout—an exceptional opportunity. This luxurious, move in ready 4 bed, 4 bath KB paired home sits in a great location with a new patio with French drain. Fantastic floor plan provides space for entertaining, play, and relaxation. Inside, an open and airy layout showcases soaring ceilings and updated floors that blends timeless elegance with everyday comfort. The gourmet kitchen features 2025 stainless steel appliances, beautiful island and granite countertops, creating the perfect setting for both daily living and hosting. The kitchen flows seamlessly into the dining and living areas, with easy access to the backyard just steps away. Upstairs, the primary suite includes a spacious walk in closet and an en suite bath with dual vanities and a soaking tub. Two additional bedrooms, a beautifully updated full bath, and a convenient upstairs laundry room complete the upper level. The professionally finished basement adds valuable flexibility, offering a large multi purpose area ideal for a home theater, gym, family room, or playroom. A 4th bedroom—perfect for guests or a home office—along with a custom 3/4 bath and dedicated storage space complete this level. Additional highlights include detached 2-car garage & modern neutral finishes. Residents enjoy access to parks, pools, trails, and vibrant Central Park community events. This exceptional home delivers style, space, and sophistication. Conveniently located with easy access to Northfield shopping, Downtown Denver, Denver International Airport (DIA), and Anschutz. This home combines new appliances, modern design, outdoor lifestyle, and an unbeatable location. Professional photos and video coming soon. Just bring your toothbrush!