About the Property
Welcome to Rancho Bendito, a 411-acre sustainable sanctuary nestled beneath the majestic Sangre de Cristo Mountains—where breathtaking landscapes, architectural brilliance, and cosmic wonder come together in perfect harmony. This is not just a home; it's a way of life. A place where sustainability is seamlessly woven into the fabric of everyday living, and where luxury coexists effortlessly with the rhythms of nature. At the heart of this visionary estate lies a commitment to regenerative living. Designed with environmental stewardship in mind, Rancho Bendito is a beacon of energy independence, powered by both solar and wind. The thoughtfully crafted subterranean greenhouse, tree nursery, and low-maintenance xeriscape landscaping ensure year-round beauty and abundance, while maintaining a minimal ecological footprint.
Explore sacred spaces scattered throughout the property: a European-style labyrinth for mindful reflection, a meditation chapel where firelight warms the soul, and a dark skies observatory equipped with a 17-inch university-grade telescope—offering front-row access to one of the clearest night skies in North America. Here, the stars don’t just shine—they speak.
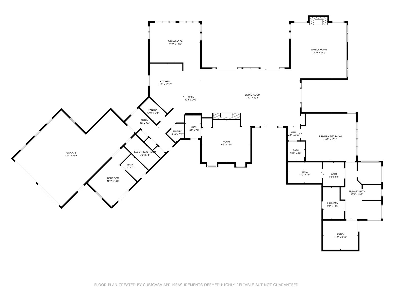
Crafted by one of North America’s premier architects, the main residence is a triumph of natural materials and timeless design. New Mexico sandstone and hand-finished plaster walls frame luminous interiors where panoramic mountain views pour through generous windows. The architecture invites light, air, and nature inside—offering an elegant dance between interior comfort and the wild beauty beyond.
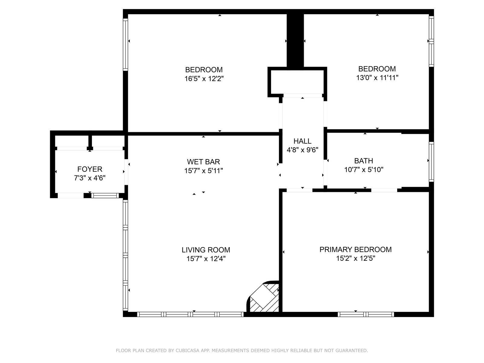
From the gourmet kitchen and view-wrapped dining room to the expansive stone terrace with its tranquil water feature, every corner of this home is built for connection—to people, to place, and to purpose. The Casita, a beautifully appointed 3-bedroom, 1-bath guesthouse, provides a private and luxurious retreat for family or friends, echoing the same level of craftsmanship and warmth.
Step outside, and adventure begins. Miles of private trails wind through wide-open meadows and forested hills, while wildlife roams freely beneath skies painted with ever-changing light. Whether harvesting vegetables from your own greenhouse, walking the labyrinth at dusk, or simply pausing to listen to the quiet, Rancho Bendito offers a lifestyle of profound peace and possibility.
Protected in perpetuity by a dedicated conservation trust and bordered by State School Trust lands and Cody Park Open Space, this estate is not only rare—it is irreplaceable. Here, your legacy is one of preservation, harmony, and hope.
Rancho Bendito is more than a destination—it’s a model for the future of sustainable living in Colorado. Where every sunrise begins a new story, and every star-filled night is a reminder of your place in something greater.
Come for the mountains. Stay for the stars. Live in wonder.